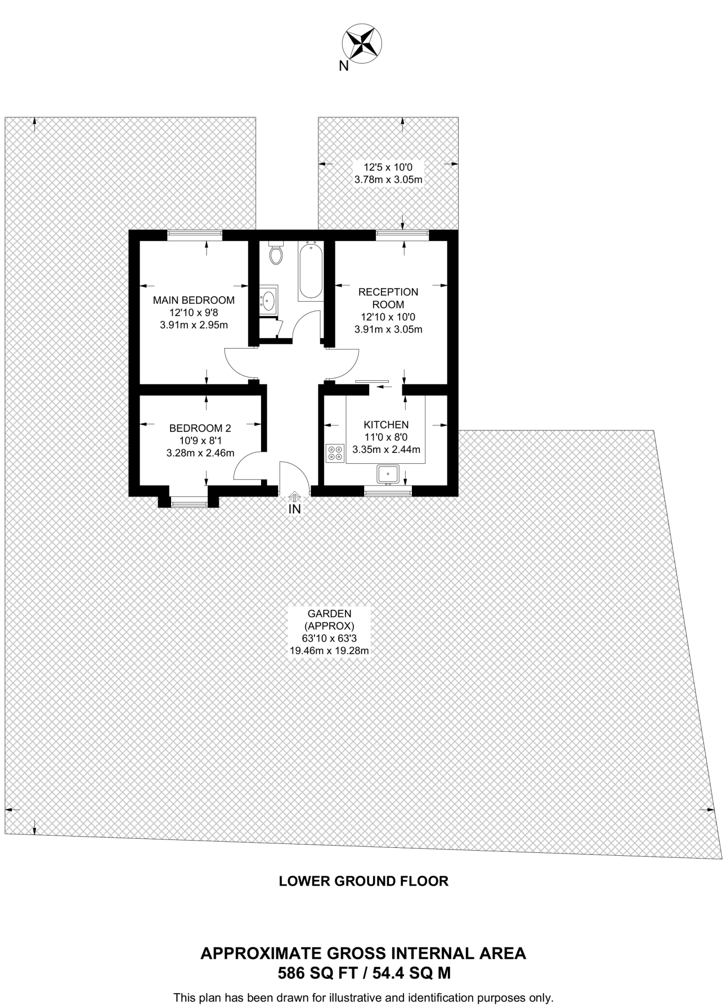
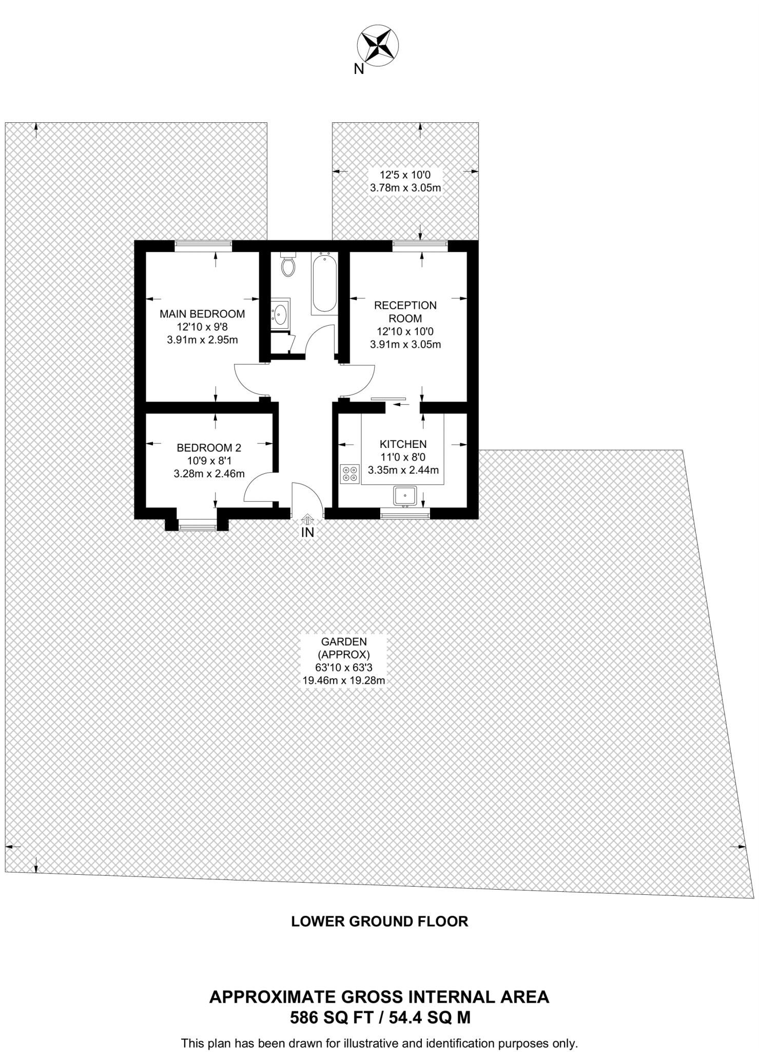
Two-bedroom lower-ground flat with large outdoor space and easy transport links.
Private entrance and rare 63' private garden
A generous-feeling 2-bedroom garden maisonette with its own private entrance and a rare 63' private garden, set on a quiet residential road in Sydenham. The flat occupies the lower ground floor and offers a bright reception room, a practical kitchen and two well-proportioned bedrooms — an easy layout for young families or first-time buyers who want outdoor space without stairs to a communal garden.
The building dates from the early 20th century and benefits from double glazing installed after 2002 and mains gas central heating via boiler and radiators. Sydenham Station and local buses are within easy reach, and a wide range of shops, restaurants and family-friendly amenities are nearby. Several primary and secondary schools rated Good by Ofsted serve the area.
Buyers should note the property’s modest total area (586 sq ft) — compact room sizes mean storage and living arrangements will need planning. The building has solid brick walls that likely lack cavity insulation, which could affect heating costs and may present an opportunity for improvement. Crime in the immediate area is above average, which some buyers will want to consider.
Tenure is share of freehold, which can simplify long-term management compared with leasehold-only arrangements. The flat offers straightforward renovation potential to improve energy efficiency and update finishes, making it a practical buy for a family or someone seeking a manageable project with an unusually large private garden for the price band.
2 bedroom flat for sale in Kelvin Grove, London, SE26 — £365,000 • 2 bed • 1 bath • 600 ft²
2 bedroom ground floor flat for sale in Peak Hill, London, SE26 — £525,000 • 2 bed • 1 bath • 688 ft²
2 bedroom maisonette for sale in Trewsbury Road, Sydenham, London, SE26 — £550,000 • 2 bed • 1 bath • 1522 ft²
2 bedroom apartment for sale in Border Crescent, London, SE26 — £600,000 • 2 bed • 2 bath • 1100 ft²
2 bedroom maisonette for sale in Oaksford Avenue, Sydenham, London, SE26 — £400,000 • 2 bed • 1 bath • 635 ft²
2 bedroom ground floor flat for sale in 2 Sydenham Avenue, London, SE26 — £525,000 • 2 bed • 1 bath • 677 ft²


































































































































































































































