Generous rooms, large garden and integrated garage in a popular commuter town.
Five bedrooms across three floors, flexible family and study spaces
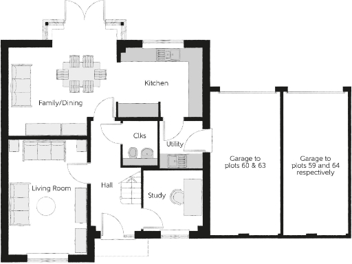
Set over three floors, this brand-new five‑bedroom detached home offers flexible family living across nearly 2,000 sq ft. The ground floor has a generous living room, separate study, cloakroom and an open-plan kitchen/family/dining room with a bay window and French doors onto a very large rear garden — ideal for children and entertaining. The modern fitted kitchen includes integrated appliances and an adjacent utility room leading to the integral double garage and private driveway parking.
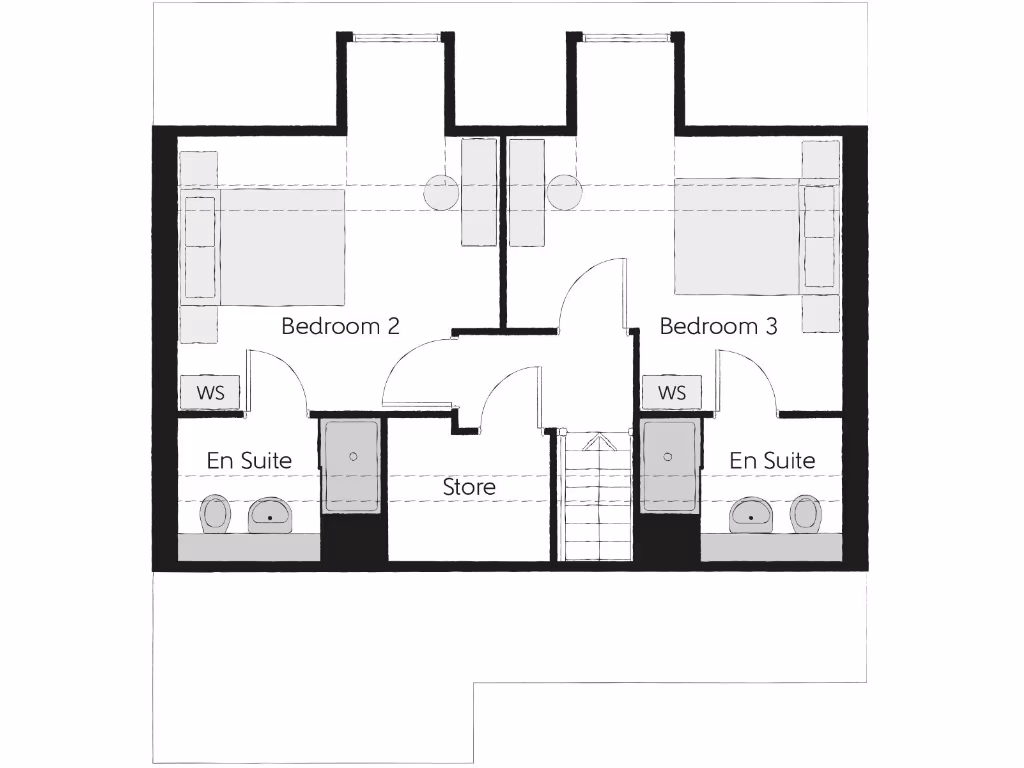
Upstairs provides multiple double bedrooms and family bathrooms. The layout includes en-suite facilities to the principal bedrooms and further en-suite provision on the top floor, giving good privacy for older children or guests. Built by a 5‑Star HBF builder and sold chain‑free with a 10‑year NHBC Buildmark policy, the home is ready to move into with contemporary finishes throughout.
Practical considerations are straightforward: the plot is very large and the neighbourhood is very affluent with very low crime and excellent mobile signal. Broadband speeds are reported slow locally; if fast home working internet is essential, check local fibre availability before exchange. Annual service/estate charges apply and council tax banding is to be confirmed.
For families seeking space, good local schools and commuter links (close to the M11 corridor and town amenities), this property combines new-build ease with flexible living. Inspect early if you need multiple en-suites, generous storage and off-street parking in a comfortable suburban setting.
5 bedroom detached house for sale in Whittington Way,
Bishop's Stortford
CM23 4AS, CM23 — £795,000 • 5 bed • 1 bath • 1996 ft²
4 bedroom detached house for sale in Whittington Way,
Bishop's Stortford
CM23 4AS, CM23 — £655,000 • 4 bed • 1 bath • 1338 ft²
4 bedroom detached house for sale in Whittington Way,
Bishop's Stortford
CM23 4AS, CM23 — £750,000 • 4 bed • 1 bath • 1711 ft²
4 bedroom detached house for sale in Whittington Way,
Bishop's Stortford
CM23 4AS, CM23 — £655,000 • 4 bed • 1 bath • 1338 ft²
5 bedroom detached house for sale in Whittington Way,
Bishop's Stortford
CM23 4AS, CM23 — £800,000 • 5 bed • 1 bath • 1996 ft²
4 bedroom detached house for sale in Whittington Way,
Bishop's Stortford
CM23 4AS, CM23 — £650,000 • 4 bed • 1 bath • 1338 ft²






































































































