Large plot, flexible living and NHBC protection ideal for growing families.
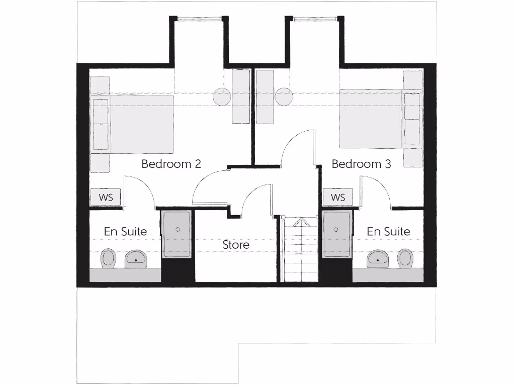
Five bedrooms across three floors, approx. 1,996 sq ft
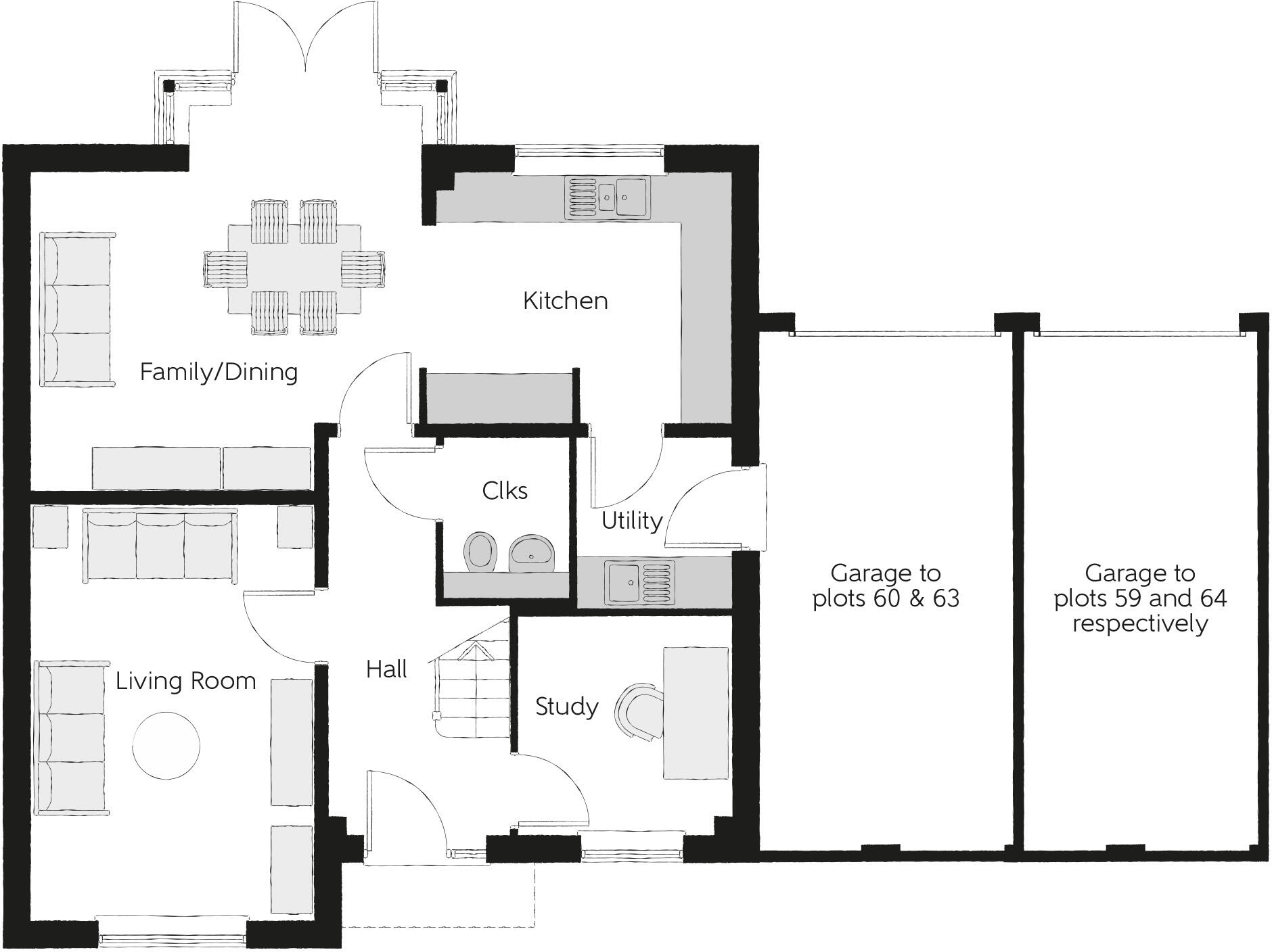
This newly built five-bedroom detached house on Whittington Way offers three floors of family living and generous internal space (approx. 1,996 sq ft). The ground floor centres on an open-plan kitchen, family and dining area with a bay window and French doors to the rear garden, plus a separate living room and a study for home working. The kitchen is fitted with integrated appliances and an adjacent utility that links to an integral double garage and private driveway parking.
Bedrooms are arranged over the first and second floors to give good separation between family and guest spaces. Several bedrooms benefit from en-suite shower rooms, and there is a well-appointed family bathroom. The home is chain free, built in 2025 and comes with a 10-year NHBC Buildmark policy for structural cover and a two-year builder warranty period.
Practical considerations are straightforward but important: broadband speeds are reported as slow, there are ongoing estate/management charges (£340.97 annual service charge; estate management charge shown as £499.69), and council tax banding is not yet confirmed. The plot is described as very large for the development and the area is very affluent with low crime and good transport links, making this a strong purchase for professional families seeking space, school access and town-edge living.
Overall, the property suits buyers wanting a modern, move-in-ready family home with flexible home-working space and sizable outdoor area, while those who need high-speed broadband or want certainty on running costs should check service details and connectivity before committing.
5 bedroom detached house for sale in Whittington Way,
Bishop's Stortford
CM23 4AS, CM23 — £795,000 • 5 bed • 1 bath • 1996 ft²
4 bedroom detached house for sale in Whittington Way,
Bishop's Stortford
CM23 4AS, CM23 — £655,000 • 4 bed • 1 bath • 1338 ft²
4 bedroom detached house for sale in Whittington Way,
Bishop's Stortford
CM23 4AS, CM23 — £655,000 • 4 bed • 1 bath • 1338 ft²
4 bedroom detached house for sale in Whittington Way,
Bishop's Stortford
CM23 4AS, CM23 — £750,000 • 4 bed • 1 bath • 1711 ft²
5 bedroom detached house for sale in Whittington Way,
Bishop's Stortford
CM23 4AS, CM23 — £800,000 • 5 bed • 1 bath • 1996 ft²
4 bedroom detached house for sale in Whittington Way,
Bishop's Stortford
CM23 4AS, CM23 — £650,000 • 4 bed • 1 bath • 1338 ft²






































































































