Prominent road position with parking and conversion potential for investors.
Double-fronted Victorian commercial building with large display windows
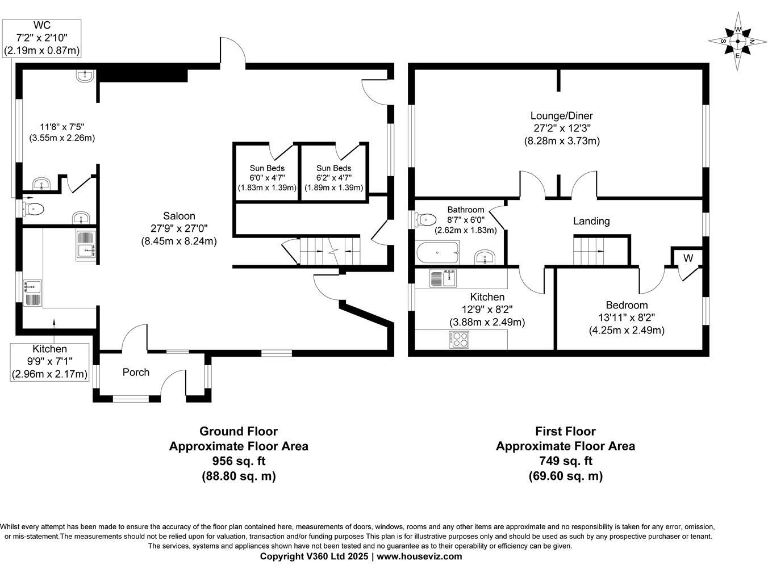
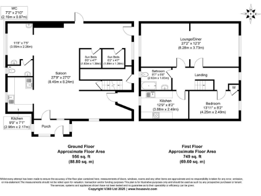
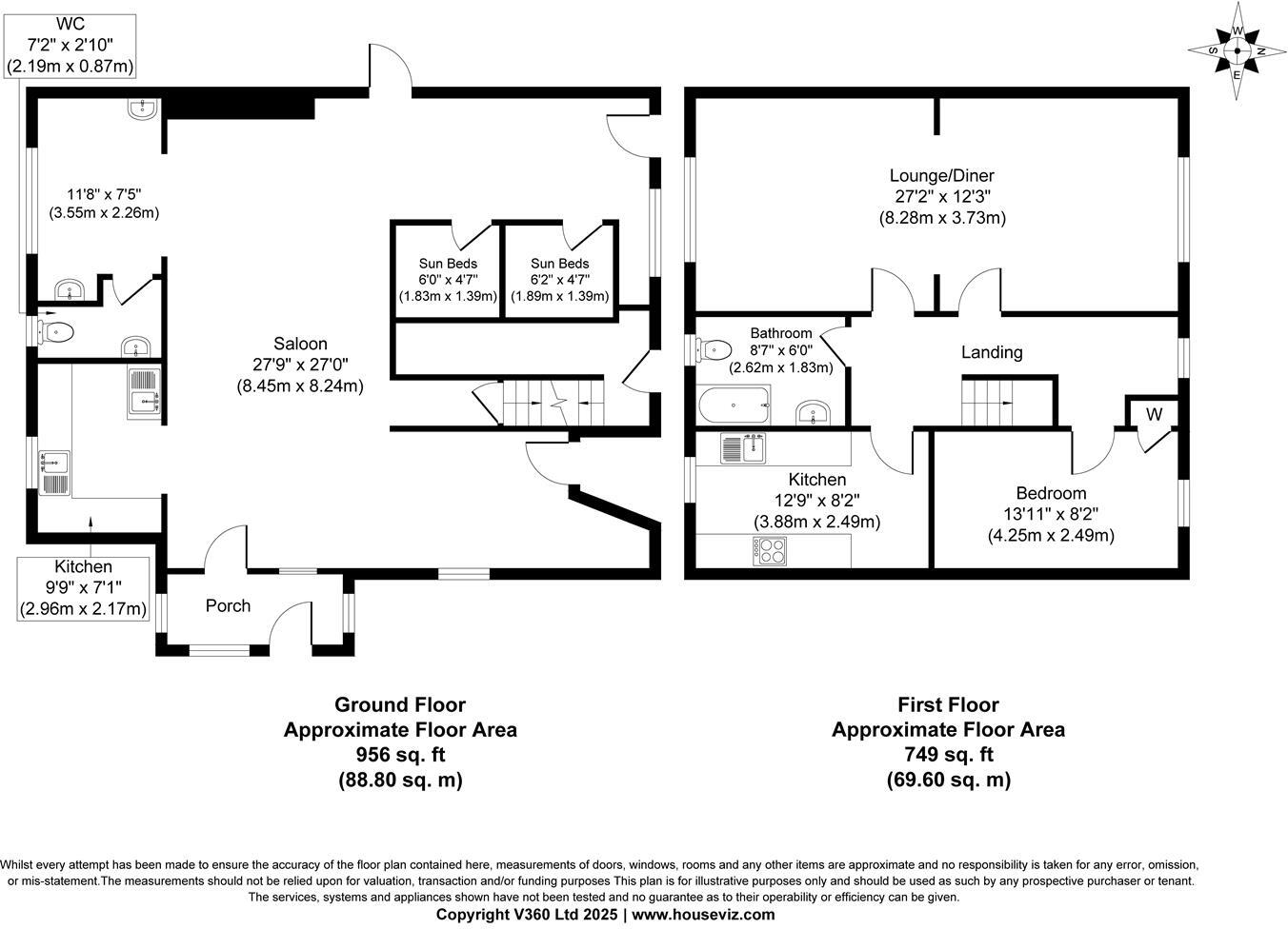
A substantial double-fronted Victorian building on Kilnhurst Road offering clear development potential. The ground floor comprises large commercial space with two display windows, formerly a salon and tanning business; the first floor is a self-contained one-bedroom flat with separate entrance. A generous rear yard provides off-street parking for several vehicles but is neglected and in need of clearance or repair.
This lot will be sold via the Modern Method of Auction. There is an expired planning consent (RB2001/1196) for conversion and extension to a hair salon with first-floor flat — a useful precedent but not currently live and any reuse or change will need fresh planning consent. The building is solid-brick Victorian stock (circa 1900–1929) with double glazing of unknown age and gas central heating; walls are likely uninsulated and some refurbishment will be needed to modernise thermal performance and finishes.
The price and chain-free status suit a developer or investor prepared to act quickly. Be aware the auction process requires a non-refundable reservation fee and completion within an agreed timeframe; interested buyers should review the Buyer Information Pack and carry out full legal, planning and survey enquiries before bidding. This is a good opportunity to create either continued commercial rental income with a small flat above or a redevelopment scheme, subject to permissions.
2 bedroom terraced house for sale in Holm Flatt Street, Parkgate, Rotherham. S62 6HJ, S62 — £60,000 • 2 bed • 1 bath • 819 ft²
Warehouse for sale in Doncaster Road, Rotherham, S63 — £125,000 • 4 bed • 2 bath • 1184 ft²
6 bedroom semi-detached house for sale in Gerard Road, Rotherham, S60 — £375,000 • 6 bed • 3 bath • 2082 ft²
3 bedroom terraced house for sale in 3 Manor Place, Rawmarsh, Rotherham, South Yorkshire S62 5BN, S62 — £28,000 • 3 bed • 1 bath • 346 ft²
3 bedroom semi-detached house for sale in 24 Mahon Avenue, Rawmarsh, Rotherham, South Yorkshire S62 7BD, S62 — £85,000 • 3 bed • 1 bath • 770 ft²
3 bedroom house for sale in High Street, Wath-Upon-Dearne, Rotherham, South Yorkshire, S63 — £405,000 • 3 bed • 1 bath • 3436 ft²


























































