Spacious family home with driveway and large outbuilding, close to schools and transport.
Chain free four-bedroom semi-detached home
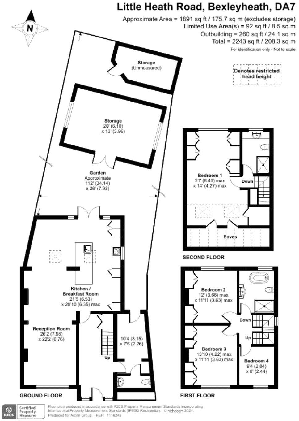
Chain-free and well-presented, this four-bedroom semi-detached home sits in the sought-after Pantiles area of Bexleyheath and offers a practical family layout across three floors. The ground floor centres on a generous open-plan kitchen, dining and living space with wide glass doors to the garden, plus a flexible room with direct garden access and a ground-floor W/C. A formal front reception room with a bay window adds traditional character.
The house benefits from a large driveway for several cars, a substantial garden outbuilding (approx. 20ft x 13ft) and a low-maintenance north-facing garden. Modern conveniences include double glazing fitted post-2002, mains gas boiler with underfloor heating, solar panels and fast broadband, making it well suited to hybrid working and family life. The top-floor principal suite provides privacy with an en-suite and eaves storage, while three further bedrooms and a four-piece family bathroom serve the rest of the household.
Practical points to note: the property is built 1930–49 with solid brick walls and assumed lack of cavity insulation, and council tax is high (Band F). The north-facing garden receives less direct sun than a south-facing plot. Overall, this is a versatile family home in a very affluent, low-crime area, close to strong schools, transport links and local amenities including Bexleyheath shopping and nearby parks.
4 bedroom semi-detached house for sale in Garden Avenue, Bexleyheath, DA7 — £595,000 • 4 bed • 2 bath • 1215 ft²
4 bedroom semi-detached house for sale in Oaklands Close, Bexleyheath, DA6 — £700,000 • 4 bed • 2 bath • 1493 ft²
4 bedroom detached house for sale in Lion Road, Bexleyheath, DA6 — £750,000 • 4 bed • 1 bath
4 bedroom semi-detached house for sale in Hollingbourne Avenue, Bexleyheath, Kent, DA7 — £650,000 • 4 bed • 2 bath • 1667 ft²
4 bedroom semi-detached house for sale in Dashwood Close, Bexleyheath, DA6 — £650,000 • 4 bed • 2 bath • 1800 ft²
4 bedroom semi-detached house for sale in Spring Vale, Bexleyheath, DA7 — £525,000 • 4 bed • 1 bath • 1389 ft²






















































































