**Standout Features:**
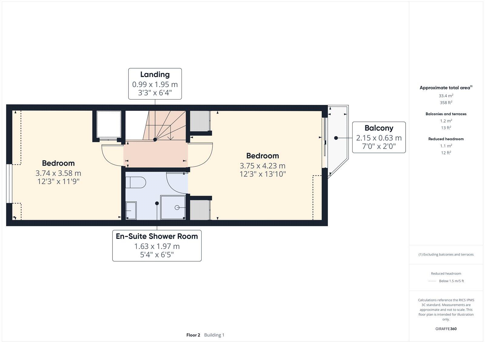
- Three spacious bedrooms including a master with en-suite
- Two south-facing balconies with golf course views
- Private, enclosed garden ideal for entertaining
- Off-street parking with a private garage
- Located in a secure, gated community near Weston’s seafront
**Potential Downsides:**
- The property is part of a larger mid-terraced block, which may limit privacy
- Nearby amenities and travel routes can lead to average noise levels
Discover a stunning three-bedroom mid-terraced home that invites you to embrace a relaxed coastal lifestyle. Perfectly situated in an exclusive gated community, this freehold property boasts breathtaking, uninterrupted views across Weston super Mare’s expansive golf course from two south-facing balconies. The inviting master bedroom, complete with an en-suite shower room, enhances the property's desirability, making it ideal for families or those seeking their dream retreat.
Spanning approximately 1,133 square feet, the home's design prioritizes space and natural light, creating welcoming living areas that are perfect for both casual living and entertaining. Enjoy sunny afternoons in the private, enclosed garden or utilize the reliable off-street parking provided by the garage. With its proximity to the seafront, local amenities, and travel links, this home is a rare opportunity that blends comfort, security, and a sense of community. Don’t miss your chance to secure this gem in such a desirable location—schedule a viewing today!
EPC Rating: C71 | Council Tax Band: E
3 bedroom town house for sale in Royal Sands, Weston super Mare - ENVIABLE FRONT LINE DEVELOPMENT, BS23 — £425,000 • 3 bed • 2 bath • 1241 ft²
3 bedroom town house for sale in Royal Sands, Prestigious Gated Community - Superb Town House, BS23 — £410,000 • 3 bed • 2 bath • 1076 ft²
4 bedroom terraced house for sale in Royal Sands, Weston-super-Mare, Somerset, BS23 — £495,000 • 4 bed • 3 bath • 1545 ft²
2 bedroom flat for sale in Uphill Road North, Weston-Super-Mare, BS23 — £270,000 • 2 bed • 2 bath • 1295 ft²
3 bedroom terraced house for sale in Amberey Road, Weston-super-Mare, North Somerset, BS23 — £265,000 • 3 bed • 2 bath • 1091 ft²
3 bedroom apartment for sale in Royal Sands, Weston-super-Mare, BS23 — £350,000 • 3 bed • 2 bath • 1022 ft²






























































































