Three-bedroom freehold with garage, gardens and strong local transport links.
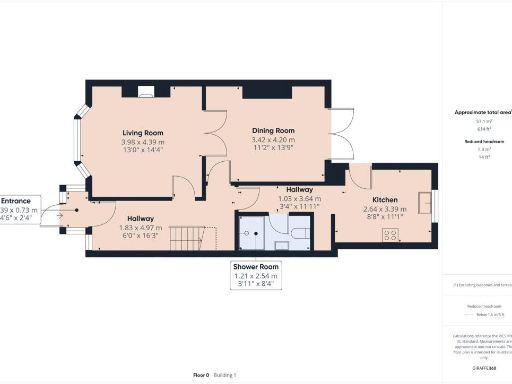
- Three bedrooms, flexible two-storey layout (approx. 1,091 sq ft)
- Private enclosed front and rear gardens
- Detached garage with off-street parking and rear access
- Period features: bay windows, high living-room ceiling, wood floors
- EPC C69; mains gas boiler and radiators
- Requires modernisation and updating throughout
- Cavity walls likely uninsulated; glazing pre-2002
- Small plot in an area with higher deprivation indicators
This three-bedroom mid-terraced freehold home offers flexible living across two floors and about 1,091 sq ft of accommodation. Well-proportioned living and dining rooms sit alongside a practical kitchen, while three bedrooms and a family bathroom occupy the first floor. A private garage provides secure off-street parking and direct access to the enclosed rear garden.
The property has characterful period features such as bay windows, high ceilings in the living room and wood flooring, which will appeal to buyers seeking charm and scope to personalise. The front and rear gardens are private and manageable, offering space for gardening or outdoor relaxation without large maintenance demands.
Practical details: EPC C69 and Council Tax Band B. The house benefits from mains gas central heating, good mobile signal and fast broadband, and convenient access to local schools, shops and public transport into Weston-super-Mare town centre.
Important considerations: the property needs modernisation in places and was built 1900–1929 with cavity walls likely lacking insulation. The double glazing was installed before 2002 and may be due for upgrading. The plot is small and the wider area shows higher levels of deprivation, which some buyers should factor into long-term plans.
3 bedroom semi-detached house for sale in Parkhurst Road, Weston-super-Mare, North Somerset, BS23 — £290,000 • 3 bed • 1 bath • 953 ft²
3 bedroom semi-detached house for sale in Ankatel Close, Weston-super-Mare, North Somerset, BS23 — £260,000 • 3 bed • 1 bath • 1101 ft²
3 bedroom end of terrace house for sale in Bransby Way, Weston-Super-Mare - BEAUTIFULLY PRESENTED, BS24 — £285,000 • 3 bed • 1 bath • 1033 ft²
3 bedroom terraced house for sale in Drove Road, Weston-Super-Mare - No Chain, BS23 — £230,000 • 3 bed • 1 bath • 944 ft²
6 bedroom semi-detached house for sale in Devonshire Road, Weston-super-Mare, North Somerset, BS23 — £495,000 • 6 bed • 2 bath • 2010 ft²
3 bedroom semi-detached house for sale in Ottawa Road Coronation Weston-super-Mare, BS23 — £160,000 • 3 bed • 1 bath • 1009 ft²










































































