Three-bedroom semi in Waddesdon with garden and loft conversion potential.
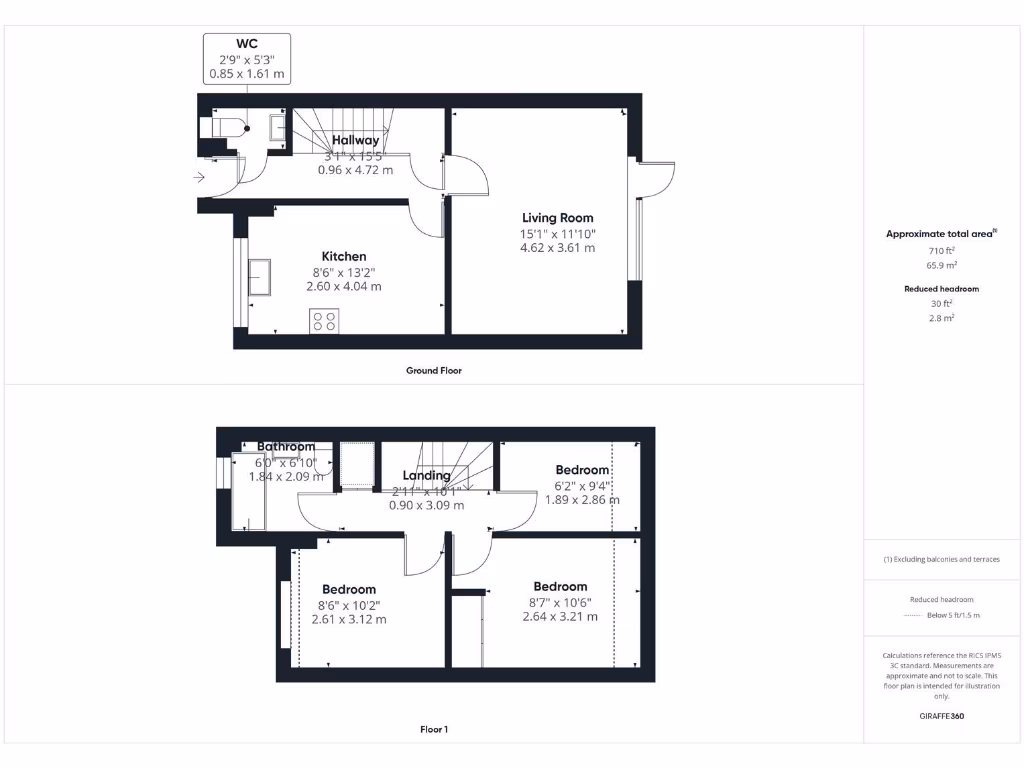
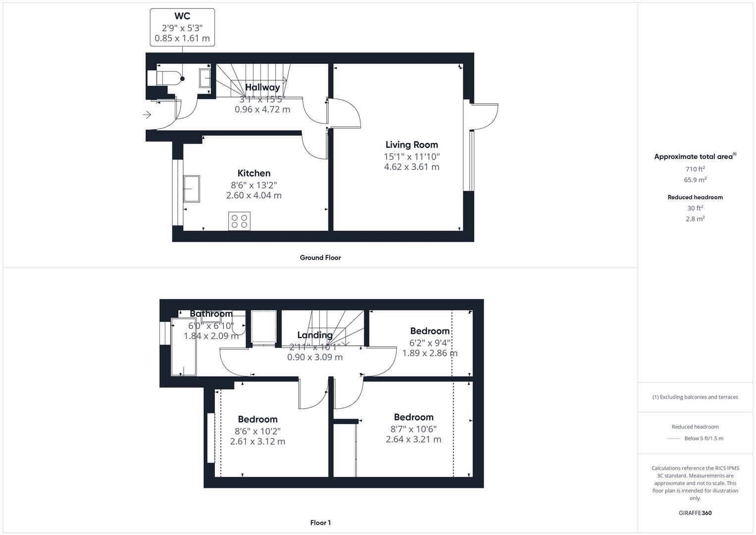
- Three bedrooms with one family bathroom
- Private rear garden with patio, lawn and shed
- Two off-road parking spaces to the front
- Freehold tenure with loft conversion permission granted
- Small overall internal footprint (approx 710 sq ft)
- Broadband speeds reported as slow in area
- Walking distance to highly regarded local schools
- Single bathroom only; check boiler and glazing ages
This well-presented three-bedroom semi-detached house sits in the sought-after village of Waddesdon, offering practical family accommodation over two floors. The living room opens onto a private rear garden with patio and lawn, while the fitted kitchen and downstairs cloakroom add everyday convenience. Two off-road parking spaces at the front increase kerb appeal and practicality.
The property is freehold and comes with planning permission and building regs approval for a loft conversion, presenting clear potential to add space and value (see Buckinghamshire council records for details). Local amenities include village shops, pubs, a doctors’ surgery and highly regarded primary and secondary schools within walking distance — a genuine draw for families.
Buyers should note the home is small in overall footprint (approximately 710 sq ft) and currently offers a single family bathroom. Broadband speeds are reported as slow, and although the property appears well maintained, prospective purchasers should confirm ages of glazing, boiler and other services. This house will suit a small family or buyers seeking a manageable village home with straightforward extension potential.
3 bedroom semi-detached house for sale in Quainton Road, Waddesdon, HP18 — £370,000 • 3 bed • 1 bath • 818 ft²
3 bedroom semi-detached house for sale in Goss Avenue, Waddesdon, Aylesbury, HP18 — £450,000 • 3 bed • 2 bath • 1132 ft²
2 bedroom semi-detached house for sale in Frederick Street, Waddesdon, HP18 — £335,000 • 2 bed • 1 bath • 764 ft²
2 bedroom end of terrace house for sale in Baker Street, Waddesdon, Aylesbury, HP18 — £300,000 • 2 bed • 1 bath • 610 ft²
3 bedroom semi-detached house for sale in Quainton Road, Waddesdon, Aylesbury, HP18 — £385,000 • 3 bed • 1 bath • 985 ft²
3 bedroom detached house for sale in Frederick Street, Waddesdon, Aylesbury, HP18 — £465,000 • 3 bed • 1 bath • 879 ft²






















































