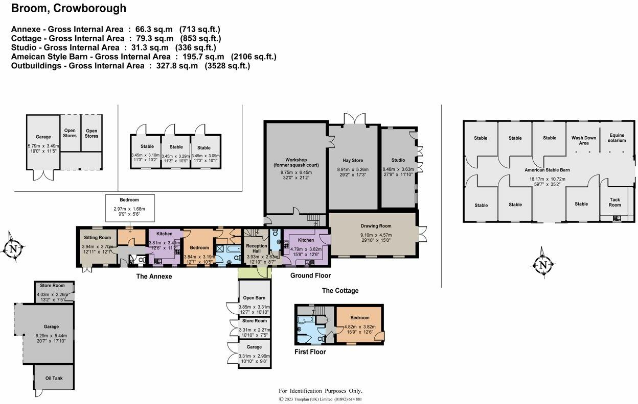
Discover an exceptional opportunity to own this grand 11-bedroom detached country estate in Crowborough, set on an expansive 18.3 acres of picturesque grounds. Boasting an impressive principal house of 6,629 sq ft, this unique residence features 8 spacious bedrooms, multiple reception rooms, and excellent family accommodations including a one-bedroom annex and a quaint cottage. The property is steeped in history, dating back to the 1920s, with legends of hosting notable guests such as Winston Churchill and Muhammad Ali.
**Standout Features:**
- 18.3 acres of landscaped gardens, paddocks, and wooded trails
- Equestrian facilities including an American-style barn with 7 stables, riding arena, and horse walker
- Several versatile rooms throughout, offering potential for further renovation (currently some rooms are used as office/storage)
- Entertaining spaces designed for gatherings, complemented by a lovely terrace leading onto manicured gardens
- Original architectural details such as high ceilings and period features
**Notable Concerns:**
- Tennis court and swimming pool require modernisation
- The property needs some renovation to bring it back to its full glory
This estate offers splendid potential for families seeking a peaceful retreat or investors looking for a property with equestrian facilities and expansive grounds. Located near the serene Ashdown Forest, this is a prime opportunity to create your dream countryside home. Given its unique blend of charm, history, and functionality, this property is sure to attract significant interest—schedule a viewing today and envision the lifestyle that awaits you!
5 bedroom detached house for sale in Cat Street, Upper Hartfield TN7 — £2,350,000 • 5 bed • 4 bath • 4793 ft²
7 bedroom detached house for sale in Goldsmiths Avenue, Crowborough, TN6 — £1,650,000 • 7 bed • 3 bath • 3584 ft²
4 bedroom detached house for sale in Newick Lane, Heathfield, East Sussex, TN21 — £900,000 • 4 bed • 1 bath • 1829 ft²
7 bedroom house for sale in Worth Lane, Little Horsted, TN22 — £1,695,000 • 7 bed • 4 bath • 8803 ft²
7 bedroom house for sale in Birling Ashes, Birling Road, West Malling, Kent, ME19 — £2,650,000 • 7 bed • 5 bath • 8776 ft²
5 bedroom detached house for sale in Back Lane, Cross in Hand, Heathfield, East Sussex, TN21 0QH, TN21 — £1,295,000 • 5 bed • 3 bath • 3435 ft²


























































































































































































