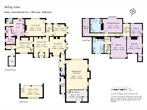
**Standout Features:**
- Impressive 17th Century Tudor-style country estate with Georgian additions
- 7 spacious bedrooms and 5 luxurious bathrooms, offering plenty of room for families or guests
- Elegant Great Hall with double vaulted ceiling and minstrel gallery
- Expansive 11.50-acre grounds, including stables, a swimming pool with a pool house, and multiple paddocks
- Well-appointed bespoke kitchen featuring granite work surfaces and adjacent utility spaces
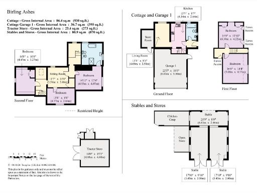
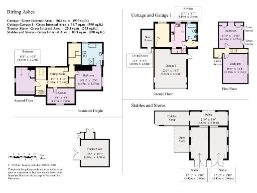
- Detached cottage with living area, kitchen, bedrooms, and bath, ideal for guests or rental potential
- Beautifully landscaped gardens with a natural pond, terraces, and mature trees
**Summary:**
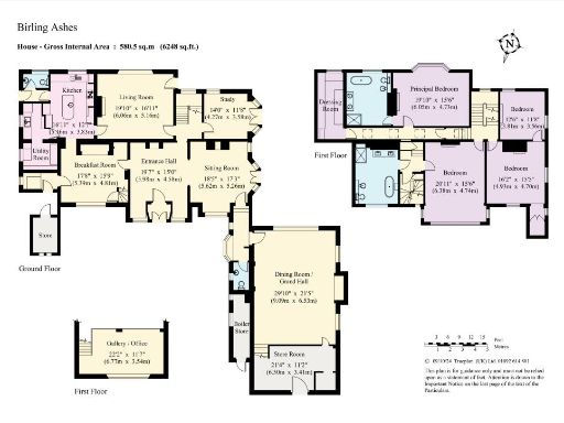
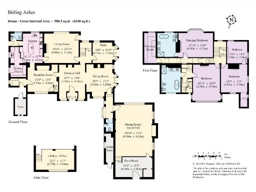
Welcome to Birling Ashes, a remarkable 7-bedroom Tudor-style estate nestled on 11.50 acres in the picturesque countryside of West Malling, Kent. Rich in historical charm, this spacious property boasts period features such as exposed timbers, lead light windows, and elegant fireplaces, providing an inviting atmosphere for families and entertaining. The standout Great Hall offers a stunning focal point with its double vaulted ceiling, while the bespoke kitchen caters to home chefs with its modern amenities and charming designs.
Perfect for those with an equestrian passion, the estate includes newly built stables, paddocks, and a brand-new sand school with natural surroundings. Outside, immerse yourself in beautifully landscaped gardens complete with a large pond and inviting terraces that are perfect for al fresco gatherings.
Strategically located near top-rated state schools and excellent local amenities, this property epitomizes comfort and serenity while ensuring accessibility to urban conveniences. However, note that there may be maintenance considerations due to its historical features. With recent renovation increasing its appeal, don’t miss the opportunity to make your mark on this exclusive countryside retreat—properties of this caliber are few and far between!
11 bedroom detached house for sale in Chillies Lane, Crowborough, East Sussex, TN6 — £3,300,000 • 11 bed • 4 bath • 7190 ft²
5 bedroom detached house for sale in Hosey Hill,Westerham,TN16 1TA, TN16 — £2,350,000 • 5 bed • 4 bath • 4800 ft²
5 bedroom detached house for sale in Cat Street, Upper Hartfield TN7 — £2,350,000 • 5 bed • 4 bath • 4793 ft²
6 bedroom detached house for sale in Rushmore Hill, Knockholt, Sevenoaks, TN14 7NL, TN14 — £2,500,000 • 6 bed • 5 bath • 6000 ft²
5 bedroom detached house for sale in rural Sevenoaks, West Kent, TN15 — £2,250,000 • 5 bed • 1 bath • 4148 ft²
8 bedroom detached house for sale in Horns Hill, Hawkhurst, TN18 — £3,500,000 • 8 bed • 1 bath • 5397 ft²


































































































































































































































































































































































































































