Period character, south garden and a converted garage ideal for home working.
Three well-proportioned bedrooms plus usable loft space
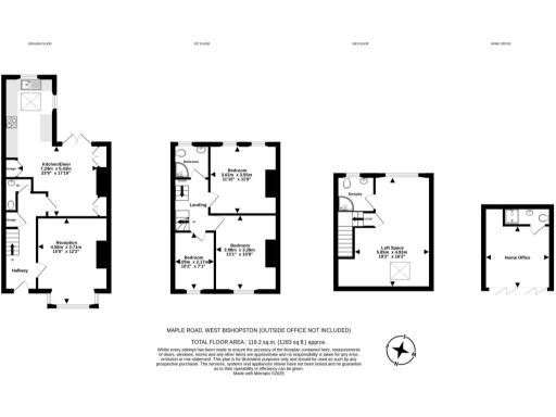
A well-maintained 1930s terraced house in West Bishopston, offering three well-proportioned bedrooms and useful loft space across multiple floors. The house combines period character — bay window, fireplaces and wooden floors — with contemporary updates and an EPC rating of C.
Light pours through from the south-facing garden into a bright kitchen/diner that opens onto a decked area and lawn. At the bottom of the garden is a converted garage with power, plumbing and a bathroom, providing a flexible home-office, studio or outbuilding with direct rear access and parking.
Set within walking distance of Gloucester Road’s independent shops, cafes and restaurants and the open space of Horfield Common, this home suits families who want community, convenient amenities and good local schools. The property is freehold, on a small plot, with fast broadband and very low local crime.
Buyers should note the house has one principal bathroom in the main property and a usable loft rather than a fully finished fourth bedroom. While meticulously cared for, the small garden/plot size and single main bathroom are practical considerations for larger families.
3 bedroom terraced house for sale in Briavels Grove, Bristol, BS6 — £595,000 • 3 bed • 1 bath • 964 ft²
3 bedroom terraced house for sale in Highfield Grove, West Bishopston, Bristol, BS7 — £695,000 • 3 bed • 1 bath • 1152 ft²
3 bedroom terraced house for sale in Manor Road | Bishopston, BS7 — £675,000 • 3 bed • 1 bath • 1237 ft²
3 bedroom terraced house for sale in Kipling Road, Bristol, BS7 — £360,000 • 3 bed • 1 bath • 1845 ft²
3 bedroom terraced house for sale in Downend Road, Horfield, Bristol, BS7 — £400,000 • 3 bed • 1 bath • 928 ft²
3 bedroom terraced house for sale in Wellington Hill West, Henleaze, BS9 — £440,000 • 3 bed • 1 bath • 1284 ft²










































































