PE29 7AA - 4 bedroom detached house for sale in St Peters Road, Huntin…

View on Property Piper

4 bedroom detached house for sale in St Peters Road, Huntingdon, PE29

Summary - 29 ST PETERS ROAD HUNTINGDON PE29 7AA

4 bed 4 bath Detached

Spacious Grade II Georgian house with large gardens, period features and excellent town links.
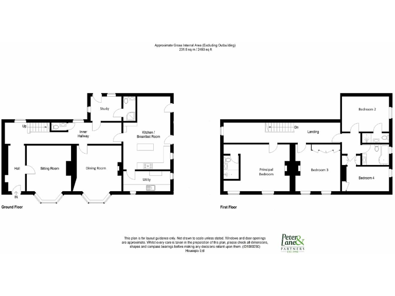
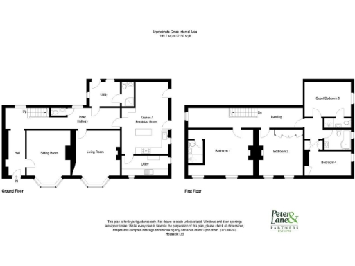
Grade II listed Georgian detached house over 2,000 sq ft
This impressive Grade II listed Georgian house offers more than 2,000 sq ft of versatile family living in a non-estate location close to Huntingdon town centre and station. High ceilings, deep skirtings, oak floors and antique brass fittings preserve strong period character, while a well-designed contemporary kitchen and utility provide modern daily convenience. The principal and guest bedrooms each have en suites, and the layout includes a flexible study/day room ideal for home working.

Externally the property sits well back from the road with a deep frontage, sizeable front and rear gardens and off-street parking with scope for more vehicles. The plot is unusually large for the area and will suit families who value outdoor space, entertaining and space for hobbies or a play area. Local schools rated Good are within easy reach.

Prospective buyers should note the Grade II listed status — alterations will be restricted and could add time and cost to any refurbishment. Council tax is above average and the recorded local crime level is high; prudent buyers should factor these into ongoing running costs and security considerations. Viewing is by appointment only due to the house’s historic nature and layout.

Property Details

Brochure Descriptions

Image Descriptions

Floorplan Description

Rooms

Textual Property Features

Target Audience

AI Tags

Detected Visual Features

Nearby Schools

Nearest Bars And Restaurants

,,,,}

Nearest General Shops

,,}

Nearest Grocery shops

,,}

Nearest Supermarkets

,,}

Nearest Religious buildings

,,}

Nearest Medical buildings

,,,}

Nearest Leisure Facilities

,,,,}

Nearest Tourist attractions

,,}

Nearest Train stations

,,,,}

Nearest Bus stations and stops

,,,,}

Nearest Hotels

,,}

Tags

Local Market Stats

AirBnB Data

Similar Properties

Meta

High Res Images

Compatible Images

Low res Images

Thumbnails

Raw Images

High Res Floorplan Images

Compatible Floorplan Images

Low res Floorplan Images

FloorplanImages Thumbnail

Raw Floorplan Images