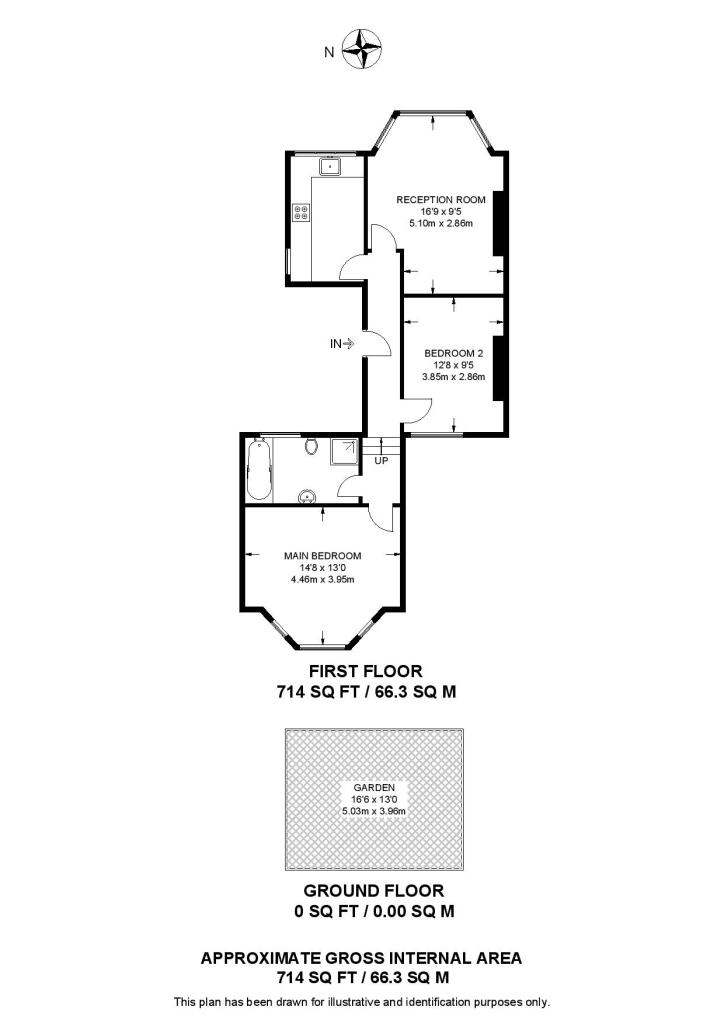
Spacious period apartment with garden, ideal for first-time buyers or investors.
Bay-fronted reception with high ceilings and strong natural light
Private garden—unusual and valuable for a first-floor flat
Two double bedrooms; circa 714 sq ft (66.3 sqm)
Modern compact kitchen with integrated appliances
Contemporary bathroom; overall ready to occupy
Leasehold and sold at online auction—check legal pack and fees
Solid brick 1930s construction; likely no wall insulation
EPC rating C; mains gas boiler and radiators heating
This two-bedroom first-floor flat on Riggindale Road offers generous living space and classic Edwardian character. The bay-fronted reception room delivers high ceilings and natural light, while a private garden provides outdoor space rarely found with flats. At about 714 sq ft, the layout suits first-time buyers or investors seeking a ready-to-live-in home with scope to update.
The kitchen is modern and compact with integrated appliances; the bathroom is contemporary. The building dates from the 1930s with solid brick walls (likely uninsulated) and mains gas central heating via boiler and radiators. Energy performance is rated C.
This leasehold property will be sold at online auction on 17 December 2025; the seller may accept the highest bid within 48 hours after the auction closes. The location is convenient for Tooting Bec Common, local shops, and good rail links at Streatham and Streatham Common.
Note the material points: the flat sits in a period building with assumed solid brick walls and no cavity insulation, so additional insulation or retrofit works may be required. Leasehold terms and auction sale mechanics mean buyers should check legal packs and service charges before bidding.
2 bedroom flat for sale in Ashbourne Road, Mitcham, Surrey, CR4 — £360,000 • 2 bed • 1 bath • 644 ft²
2 bedroom flat for sale in Flat B , 88 Streathbourne Road, Tooting, London, SW17 — £320,000 • 2 bed • 1 bath • 689 ft²
2 bedroom flat for sale in Riggindale Road, Streatham, SW16 — £425,000 • 2 bed • 1 bath • 693 ft²
2 bedroom apartment for sale in Riggindale Road, London, SW16 — £525,000 • 2 bed • 1 bath • 803 ft²
1 bedroom flat for sale in Flat 10 Wavertree Court, Streatham Hill, SW2 4TL, SW2 — £120,000 • 1 bed • 1 bath
1 bedroom flat for sale in First Floor Flat, 84 Louisville Road, London, Wandsworth, SW17 8RU, SW17 — £395,000 • 1 bed • 1 bath






























