Quiet location with generous parking and garden, great scope to extend.
Generous off-road parking via long shared driveway
Corner-plot rear garden with shed and patio
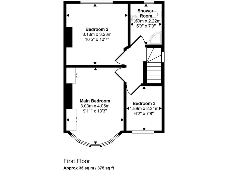
Three well-proportioned bedrooms; loft has conversion potential
Fitted breakfast kitchen with gas hob and combi boiler
Single family bathroom only; may be limiting for larger households
Modest internal size (~785 sq ft) overall
Freehold tenure; potential for rear extension (subject permissions)
Local area classified as deprived; schools nearby mostly rated Good
Set on a quiet cul-de-sac at the edge of open countryside, this traditionally styled semi-detached house offers practical family living with strong vehicular access. The bay-fronted lounge, separate dining/sitting room and fitted breakfast kitchen give a flexible ground-floor layout. Three bedrooms and a fitted family bathroom serve the first floor; loft access suggests potential for a conversion, subject to permissions.
Externally the property benefits from a long driveway with ample off-street parking and a corner-plot rear garden with lawn, patio and a large storage shed/workshop. The plot may accommodate a substantial rear extension, subject to relevant planning approvals. The home is freehold and presented in good decorative order, ready to occupy with scope to personalise.
Considerations: the overall internal size is modest (approximately 785 sq ft) and there is only one bathroom, which may feel tight for larger households. The front garden is narrow and neighbouring homes reflect a suburban, mid-20th-century character. The local area is classified as deprived, though nearby schools have generally good Ofsted ratings and countryside walks are within easy reach.
This property will suit buyers seeking straightforward family accommodation with parking and garden space, and those looking for sensible renovation or extension potential in a semi-rural suburban setting. An internal inspection is recommended to judge room sizes and configuration.
2 bedroom semi-detached house for sale in Wood Avenue, Wednesfield, Wolverhampton, WV11 — £195,000 • 2 bed • 1 bath • 992 ft²
3 bedroom semi-detached house for sale in Woodend Road, Wednesfield, Wolverhampton, WV11 — £295,000 • 3 bed • 1 bath • 1103 ft²
3 bedroom semi-detached house for sale in Easton Gardens, Wednesfield, Wolverhampton, WV11 — £250,000 • 3 bed • 1 bath • 848 ft²
3 bedroom semi-detached house for sale in 50 Beechwood Avenue, Wednesfield, Wolverhampton, WV11 1DT, WV11 — £293,995 • 3 bed • 1 bath • 952 ft²
3 bedroom semi-detached house for sale in Brindley Avenue, Ashmore Park, Wolverhampton, WV11 — £240,000 • 3 bed • 1 bath • 632 ft²
3 bedroom semi-detached house for sale in Springhill Road, Wolverhampton, West Midlands, WV11 — £270,000 • 3 bed • 2 bath • 1155 ft²






































































































































