Chain-free three-bedroom family home with generous parking and private garden near Lyndale Park.
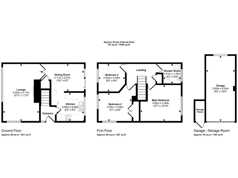
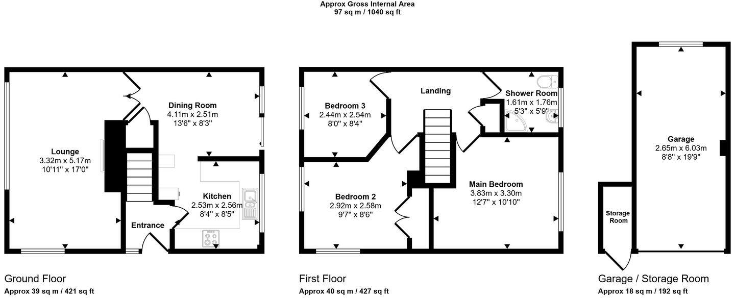
Chain free, freehold three-bedroom semi-detached house
Spacious lounge plus separate dining room with garden access
Fitted kitchen; modern first-floor fitted shower room only
Ample concrete-printed off-road parking and semi-detached garage
Pleasant rear garden with patio, small overall plot size
Popular cul-de-sac location near Lyndale Park and Bentley Bridge
Fast broadband and excellent mobile signal for home working
Single bathroom may not suit larger families or those wanting en-suites
This chain-free, three-bedroom semi-detached home sits in a quiet cul-de-sac on the edge of the popular Lyndale Park development. Internally the layout is practical: a generous lounge, separate dining room with patio access, fitted kitchen and a modern first-floor shower room serving three well-proportioned bedrooms. The presentation is pleasant throughout, making it ready to move into.
Outside, the property benefits from a large concrete-printed driveway with ample off-road parking and a semi-detached garage. A manageable rear garden with patio and lawn provides a private outdoor space for family use and easy entertaining. Good commuter links and nearby amenities include Bentley Bridge retail park and New Cross Hospital.
This home will suit families or professionals looking for a comfortable, well-located freehold with low immediate work required. Note the plot is modest in size and the property has a single shower room only; buyers seeking larger gardens or multiple bathrooms should consider this before viewing. Fast broadband and excellent mobile signal add practical appeal for home working and connectivity.
3 bedroom semi-detached house for sale in Lyndale Drive, Wednesfield, Wolverhampton, WV11 — £270,000 • 3 bed • 1 bath • 851 ft²
3 bedroom semi-detached house for sale in Rosalind Grove, Lyndale Estate, Wednesfield, Wolverhampton, West Midlands, WV11 — £240,000 • 3 bed • 1 bath • 1055 ft²
3 bedroom semi-detached house for sale in Hopton Crescent, Lyndale Park, Wednesfield, WV11 — £275,000 • 3 bed • 1 bath • 1002 ft²
3 bedroom semi-detached house for sale in Mercer Grove, Wednesfield, Wolverhampton, WV11 — £230,000 • 3 bed • 1 bath • 1012 ft²
3 bedroom semi-detached house for sale in 50 Beechwood Avenue, Wednesfield, Wolverhampton, WV11 1DT, WV11 — £293,995 • 3 bed • 1 bath • 952 ft²
3 bedroom semi-detached house for sale in Egmont Gardens, Wednesfield, Wolverhampton, WV11 — £240,000 • 3 bed • 1 bath • 980 ft²


















































































































