Chain-free family home near schools with parking and garden.
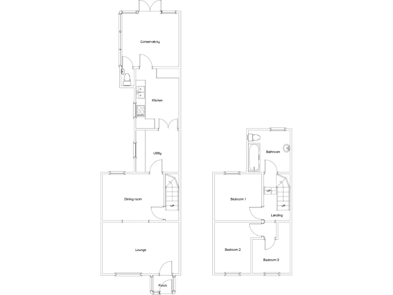
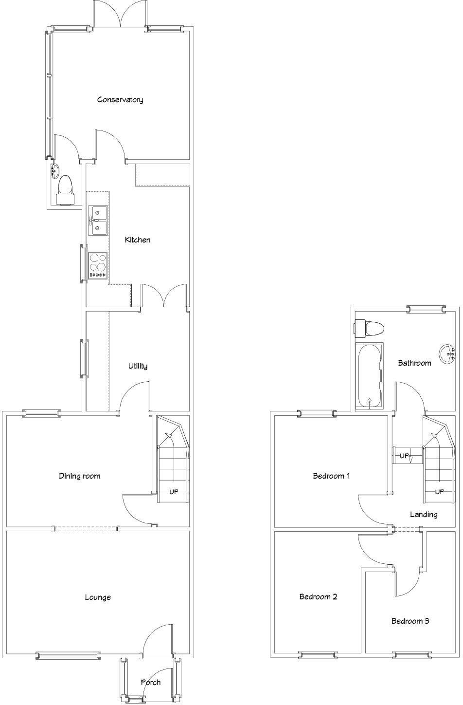
Three bedrooms and two bathrooms, practical family layout
A well-proportioned three-bedroom terraced house offering practical family living in Blackwood. The property is chain free and freehold, with off-street parking for two cars and enclosed front and rear gardens that suit outdoor family time. A bright conservatory extends the ground-floor living space for relaxed dining or play.
Interior rooms are generous and light, with laminate and vinyl flooring throughout, an open fireplace in the lounge suitable for a stove, and a fitted modern kitchen with eye-level oven. There is a useful utility room and a ground-floor WC for everyday convenience. Fast local broadband and close access to schools, parks and town-centre amenities support family routines and remote working.
The house is generally ready to occupy but shows signs of cosmetic wear and would reward updating in places to maximise value and comfort. The plot is small and the area is classified as very deprived, which may affect long-term resale values and local services. No flood risk is recorded and the property sits in a busy town setting with average crime levels.
This home suits buyers seeking immediate possession with scope to personalise: families wanting space near local schools, or investors targeting renovation potential in an affordable price band.
3 bedroom house for sale in Bevan Crescent, Cefn fforest, Blackwood, NP12 — £237,500 • 3 bed • 1 bath • 1083 ft²
3 bedroom terraced house for sale in Sirhowy View, Pontllanfraith, Blackwood, NP12 — £180,000 • 3 bed • 2 bath • 931 ft²
3 bedroom terraced house for sale in Markham Crescent, Blackwood, NP12 — £175,000 • 3 bed • 1 bath • 947 ft²
3 bedroom semi-detached house for sale in Cefn Fforest Avenue, Cefn Fforest, Blackwood, NP12 — £160,000 • 3 bed • 1 bath • 701 ft²
2 bedroom terraced house for sale in Coedcae Walk, Blackwood, Caerphilly (County of), NP12 — £150,000 • 2 bed • 1 bath • 719 ft²
3 bedroom semi-detached house for sale in Montclaire Avenue, Blackwood, Caerphilly (County of), NP12 — £225,000 • 3 bed • 1 bath • 704 ft²






















































































































