Affordable starter home with garden and fast connectivity.
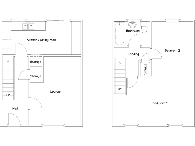
Freehold two-bedroom terraced house, 719 sq ft
A sensible two-bedroom terraced house offering 719 sq ft of practical living in Blackwood, ideal for a first-time buyer or buy-to-let investor. The layout flows well: an open-plan hallway leads to a comfortable lounge and a kitchen/diner with French doors that open onto a usable rear garden and seating area. Contemporary fittings and laminate flooring give the home a fresh feel throughout.
Both bedrooms are double-sized and the family bathroom is recently finished with smart tiling and a shower-over-bath. The property is freehold, in a popular residential part of town with fast broadband and excellent mobile signal — practical benefits for modern life and remote working. There is fitted storage on both floors and external storage to the rear for bikes and bins.
Buyers should note the wider local context: the area records higher crime and very high deprivation indicators, which can affect resale and rental demand. The plot is small and the home is average-sized, so external space and expansion options are limited. Parking is not specified and may be restricted on-street.
Overall, this is a straightforward, well-presented terrace offering good value at the listed price. It suits someone seeking an affordable, low-maintenance starter home or a rental purchase in a town centre location with strong connectivity.
3 bedroom house for sale in David Street, Blackwood, , NP12 — £182,500 • 3 bed • 1 bath • 915 ft²
3 bedroom terraced house for sale in Twynyffald Road, Blackwood, Caerphilly (County of), NP12 — £180,000 • 3 bed • 2 bath • 1040 ft²
2 bedroom terraced house for sale in Fields Road, Oakfield, NP44 — £165,000 • 2 bed • 1 bath • 829 ft²
3 bedroom terraced house for sale in Brynglas Avenue, Pontllanfraith, NP12 — £179,950 • 3 bed • 2 bath • 872 ft²
2 bedroom house for sale in Wesley Place, Beaufort, NP23 — £159,000 • 2 bed • 1 bath • 603 ft²
3 bedroom terraced house for sale in Markham Crescent, Blackwood, NP12 — £175,000 • 3 bed • 1 bath • 947 ft²






























































































