**Standout Features:**
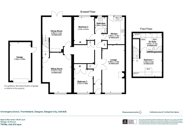
- 3 spacious bedrooms and 2 bathrooms
- Modern semi-detached design with a cozy and inviting feel
- Generous living space across 7 rooms, with a welcoming hallway and multiple relaxation areas
- Formal dining room with French doors leading to well-maintained gardens
- Well-equipped kitchen with easy garden access, perfect for outdoor dining
- Principal bedroom featuring Velux windows and an en suite shower room
- Private driveway and detached garage for off-street parking
- Attractive front and rear gardens with landscaping
- Located in a quiet cul-de-sac, close to local amenities and parks
**Summary:**
Discover the charm of this stylish three-bedroom semi-detached home in the serene neighborhood of Invergarry Grove, just a stone's throw from the esteemed David Lloyd Rouken Glen. This property offers a perfect blend of spaciousness and tranquility, making it an ideal retreat for families or first-time buyers.
As you step inside, you’ll be greeted by a warm hallway leading to inviting spaces, including a cozy lounge with a central fireplace and a delightful second sitting room with scenic garden views. The formal dining room with French doors seamlessly integrates indoor and outdoor living, providing a lovely venue for entertaining.
Upstairs, the principal bedroom serves as a peaceful sanctuary, complete with natural light from Velux windows and an en suite shower room. Outside, enjoy the benefits of off-street parking and beautifully landscaped gardens, ideal for family gatherings or simply unwinding in a secure environment.
While the area provides a wealth of local amenities, excellent public transport, and quick access to the M77, the property falls under a council tax band E, which may be of consideration. With the rising interest in cozy suburbia living, don’t miss your chance to view this exceptional home—opportunities like this don’t last long!
3 bedroom semi-detached bungalow for sale in Invergarry Grove, Deaconsbank, G46 — £260,000 • 3 bed • 2 bath • 1023 ft²
3 bedroom semi-detached house for sale in Crosslees Road, Thornliebank, Glasgow, East Renfrewshire, G46 — £310,000 • 3 bed • 2 bath
4 bedroom detached house for sale in Langtree Avenue, Giffnock, Glasgow, G46 — £795,000 • 4 bed • 2 bath • 2373 ft²
3 bedroom semi-detached house for sale in 30 New Luce Drive, Mount Vernon, Glasgow, G32 — £269,995 • 3 bed • 2 bath
3 bedroom detached bungalow for sale in Atholl Drive, Giffnock, G46 — £445,000 • 3 bed • 1 bath • 1351 ft²
3 bedroom semi-detached house for sale in Invergarry Drive, Thornliebank, G46 — £235,000 • 3 bed • 2 bath • 1152 ft²










































































































