Modern detached family home with development potential near Central line stations.
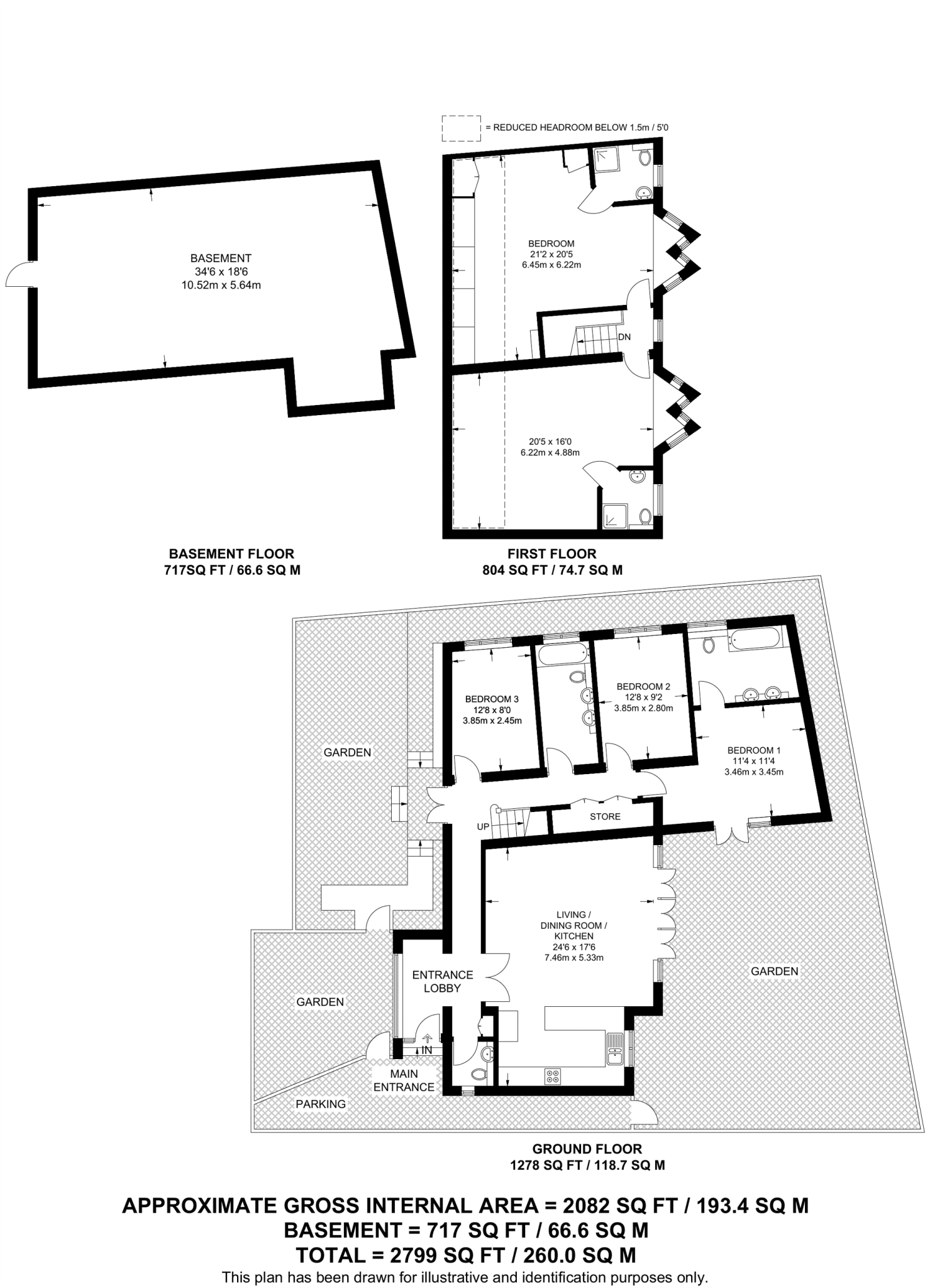
Five double bedrooms across multiple storeys
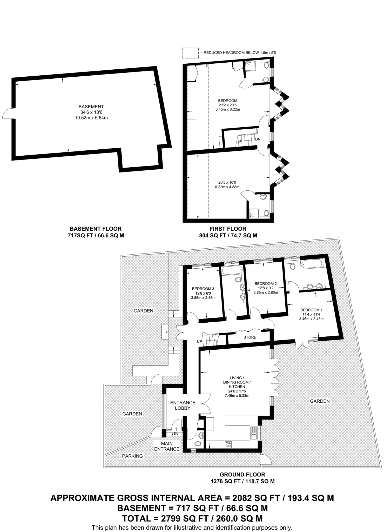
This contemporary five-double-bedroom detached house offers spacious, light-filled rooms and modern fittings across multiple storeys. High ceilings and an open-plan reception with an integrated kitchen create an impressive family living space, while underfloor heating on the ground floor adds everyday comfort. Three en suites plus a separate family bathroom and utility room suit a busy household.
The property sits on a decent plot with off-street parking and clear scope to develop the basement, presenting potential to increase living space or rental income (subject to consents). Located close to East Acton Underground (Central line) and local shops, it suits commuters and growing families who value convenient travel links and nearby good schools.
Buyers should note a few practical negatives: broadband speeds in the area are slow and local crime levels are above average. The house is freehold and newly built, but any basement development will require planning approval and additional investment. Overall this is a modern, well-appointed family home with measurable scope to add value.
5 bedroom house for sale in Friars Place Lane, Acton, W3 — £1,500,000 • 5 bed • 4 bath • 2000 ft²
5 bedroom detached house for sale in Rosemont Road, London, W3 — £1,375,000 • 5 bed • 2 bath • 2189 ft²
6 bedroom house for sale in Hoylake Road, Acton, London, W3 — £950,000 • 6 bed • 2 bath • 1563 ft²
5 bedroom house for sale in Old Oak Road, Shepherd's Bush, London, W3 — £950,000 • 5 bed • 3 bath • 1751 ft²
4 bedroom terraced house for sale in Braid Avenue, London, W3 7TU, W3 — £675,000 • 4 bed • 1 bath • 958 ft²
4 bedroom semi-detached house for sale in St Dunstans Avenue, Acton, London, W3 — £1,000,000 • 4 bed • 2 bath • 2485 ft²


























































































































































































































































































































































































































































