Characterful village cottage with modern kitchen, new roof and open-field views.
Stone-built Victorian end-terrace with countryside views to the rear
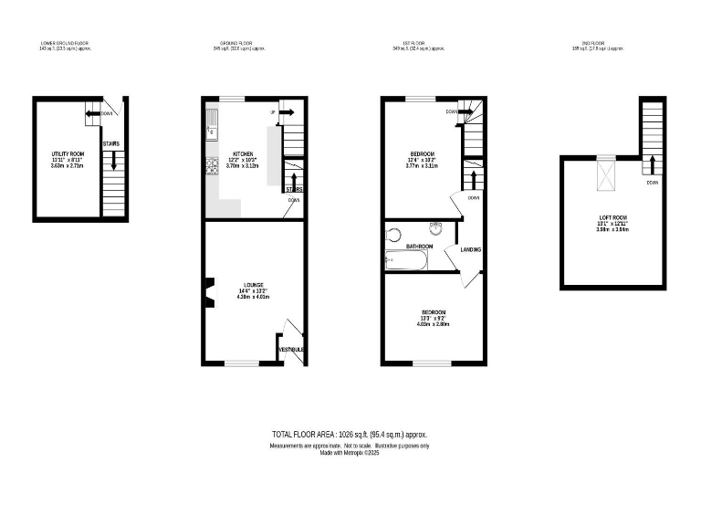
This stone-built end-terrace cottage sits on Station Road in Dove Holes, with clear uninterrupted views over open fields to the rear. Spread over four floors, the house combines period character — exposed stone exterior and a cosy lounge with a log-burning stove — with a modern kitchen and bathroom, plus a useful loft room that opens to a small balcony.
The layout suits a first home or small family: two bedrooms, a lower-ground utility room with garden access, and a compact but practical footprint of about 1,026 sq ft. A recent new roof (installed under 12 months ago) is a strong practical advantage, and the rear raised deck provides a pleasant spot to take in the countryside outlook.
Practical considerations are straightforward: the plot is small with limited front amenity space, and the property’s multi-storey layout includes many internal stair runs which may not suit all buyers. Broadband speeds are slow locally and tenure details need solicitor verification. Overall, this is a characterful village cottage with modern conveniences and scope for light cosmetic improvement or further loft conversion work subject to consents.
3 bedroom terraced house for sale in Hallsteads, Dove Holes, SK17 — £169,950 • 3 bed • 1 bath • 872 ft²
2 bedroom terraced house for sale in Buxton Road, Furness Vale, High Peak, Derbyshire, SK23 — £165,000 • 2 bed • 1 bath • 738 ft²
2 bedroom end of terrace house for sale in Buxton Road, Furness Vale, High Peak, Derbyshire, SK23 — £175,000 • 2 bed • 2 bath • 877 ft²
2 bedroom terraced house for sale in Buxton Road, New Mills, High Peak, SK22 — £220,000 • 2 bed • 1 bath • 940 ft²
3 bedroom end of terrace house for sale in Meadow Lane, Dove Holes, Buxton, Derbyshire, SK17 — £325,000 • 3 bed • 1 bath • 1056 ft²
2 bedroom flat for sale in Dale Road, Dove Holes, Nr Buxton, SK17 — £139,950 • 2 bed • 1 bath • 487 ft²






















































