Country estate lifestyle with communal leisure facilities and private parking close to Exeter.
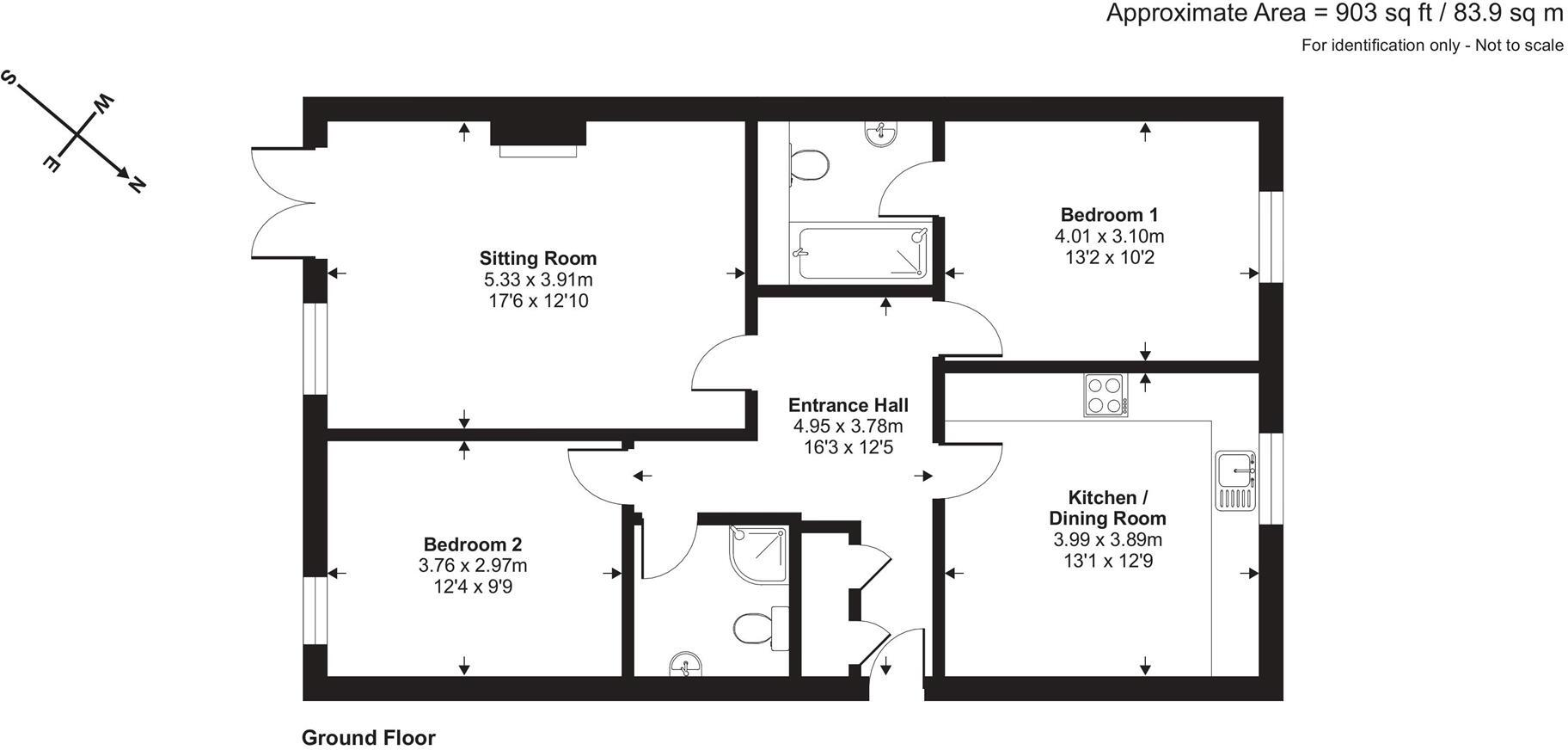
Ground‑floor two‑bedroom apartment with high ceilings and period cornicing
Newly refurbished kitchen and bathrooms, ready to move into
Access to 10.8 acres of communal grounds, riverside walks and fishing rights
Communal indoor heated pool, games room, tennis court and visitor parking
Includes single garage and allocated parking space
Grade II listed — restrictions on alterations and potential consent issues
Service charge c. £1,100 per quarter (£4,400 pa); council tax above average
Very slow broadband speeds; property on private drainage
Set within the private, landscaped grounds of a late 18th‑century estate, this ground‑floor two‑bedroom apartment blends period character with recent refurbishment. High ceilings, ornate cornicing and sash windows give a strong Georgian feel, while the kitchen and bathrooms have been updated for modern living. The principal bedroom benefits from an en‑suite bathroom; the second double has a separate shower room.
Residents share extensive communal amenities including 10.8 acres of grounds with riverside walks and fishing rights, an indoor heated swimming pool, games room, tennis court, and visitor parking. The apartment includes a single garage and an allocated parking space. The long lease and part‑share of the freehold provide secure tenure and in‑house management of the estate.
Practical considerations: the property is Grade II listed, which preserves character but restricts external and some internal alterations and can complicate consent for works. Service charges are currently £1,100 per quarter (approx. £4,400 pa) and council tax is above average. Broadband speeds are very slow in this location, and the property uses private drainage. These points are important for buyers prioritising low running costs or extensive renovations.
This apartment will suit downsizers or buyers seeking country tranquillity within easy reach of Exeter (about 3 miles). The combination of handsome period detail, generous communal grounds and leisure facilities delivers a lifestyle proposition that is rare for village locations, while the listed status and communal charges should be weighed when considering long‑term plans.
2 bedroom flat for sale in Cowley, Exeter, Devon, EX5 — £249,500 • 2 bed • 1 bath • 871 ft²
3 bedroom apartment for sale in Knighthayes Walk, Exminster, EX6 — £225,000 • 3 bed • 2 bath • 713 ft²
3 bedroom apartment for sale in Strete Ralegh House, London Road, Exeter, EX5 — £325,000 • 3 bed • 2 bath • 1582 ft²
2 bedroom apartment for sale in Mansion House, Devington Park, Exminster, Exeter, EX6 — £190,000 • 2 bed • 1 bath • 850 ft²
2 bedroom flat for sale in Cleve Lane, Exeter, Devon, EX4 — £290,000 • 2 bed • 1 bath • 1349 ft²
2 bedroom apartment for sale in Mount Dinham Court, Exeter, Devon, EX4 — £300,000 • 2 bed • 2 bath • 514 ft²






































































