Chain-free, low-maintenance home ideal for first-time buyers or investors.
Two double bedrooms with practical, contemporary finishes
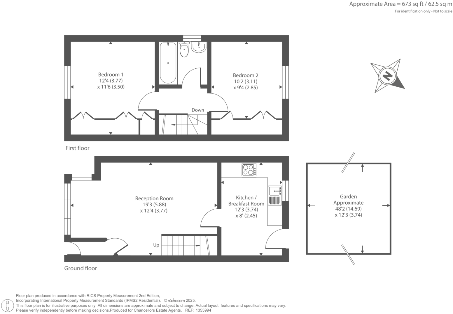
Tucked at the end of a quiet cul-de-sac in East Oxford, this two-bedroom end-of-terrace offers a practical, low-maintenance home just 1.5 miles from the city centre. The property is freehold and chain-free, making for a straightforward purchase for first-time buyers, downsizers or buy-to-let investors.
Inside, rooms are well-proportioned and presented with contemporary finishes, including double glazing and laminate flooring in the living area. The ground floor has a combined lounge/diner and separate kitchen, while upstairs provides two double bedrooms and a family bathroom — a simple layout that’s easy to adapt or update.
Outside there’s an enclosed rear garden (small) and two off-street parking spaces. The cul-de-sac setting brings relative peace, while frequent bus routes and local amenities are within easy reach. Several well-rated primary and secondary schools are nearby.
Notable points to consider: the plot is modest, there is only one bathroom, and the area has a medium flooding risk. The house was constructed around 1996–2002 and has assumed cavity wall insulation; exact dates for glazing or recent services are not provided. These factors may influence insurance, refurbishment scope and future running costs.
2 bedroom terraced house for sale in East Oxford, Oxford, OX4 — £425,000 • 2 bed • 2 bath • 838 ft²
2 bedroom end of terrace house for sale in Leafield Road, Oxford, Oxfordshire, OX4 — £365,000 • 2 bed • 1 bath • 641 ft²
2 bedroom terraced house for sale in Bhandari Close, Oxford, OX4 — £375,000 • 2 bed • 1 bath • 517 ft²
4 bedroom end of terrace house for sale in Percy Street, East Oxford OX4 — £725,000 • 4 bed • 1 bath • 1362 ft²
2 bedroom end of terrace house for sale in Donnington Bridge Road, Oxford, OX4 — £375,000 • 2 bed • 1 bath • 440 ft²
2 bedroom terraced house for sale in Ablett Close, Oxford, OX4 — £375,000 • 2 bed • 1 bath • 577 ft²






































































































