Bright ground-floor flat by Cornwallis Gardens, close to beach and station.
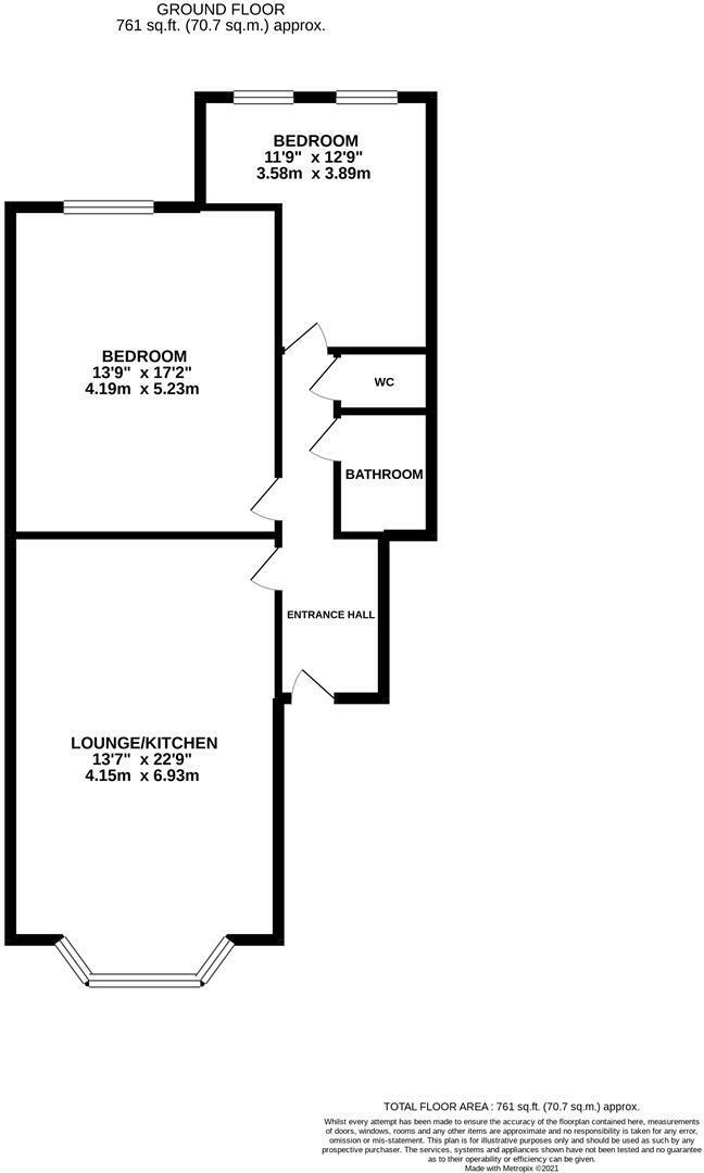
Ground‑floor, two double bedrooms with high ceilings and period fireplaces
A bright, period two-bedroom ground-floor apartment with generous proportions and original features. The open-plan living and fitted kitchen are bay-fronted, bathing the space in natural light and overlooking Cornwallis Gardens — ideal for relaxed seaside living or a first home.
Practical benefits include a long 115-year lease with a share of freehold, a compact but usable 761 sq ft layout and very low council tax. The property is extremely well placed for Hastings mainline station, Priory Meadow shopping and the beach, making commuting and leisure straightforward.
Important considerations: the immediate area records very high crime levels and is classed as very deprived, which may concern some buyers or affect insurance and security costs. Broadband speeds are average; mobile signal is excellent. As a ground-floor flat in a central, active neighbourhood, you should expect typical town-centre noise and footfall. Overall, this is a characterful, well-located flat offering good potential for first-time buyers or a seaside retreat, provided buyers are comfortable with the local area profile.
2 bedroom flat for sale in Cornwallis Gardens, Hastings, TN34 — £150,000 • 2 bed • 1 bath • 679 ft²
2 bedroom flat for sale in Cornwallis Gardens, Hastings, TN34 — £300,000 • 2 bed • 1 bath • 1114 ft²
2 bedroom flat for sale in Cornwallis Gardens, Hastings, TN34 — £225,000 • 2 bed • 1 bath • 739 ft²
2 bedroom flat for sale in Cornwallis Gardens, Hastings, TN34 — £249,950 • 2 bed • 1 bath • 743 ft²
2 bedroom flat for sale in Castledown Terrace, Hastings, TN34 — £220,000 • 2 bed • 1 bath • 603 ft²
1 bedroom flat for sale in Milward Road, Hastings, TN34 — £220,000 • 1 bed • 1 bath • 718 ft²


















































