Chain-free second-floor apartment moments from Hastings station and the beach.
Second-floor two-bedroom flat with leafy outlook over Cornwallis Gardens
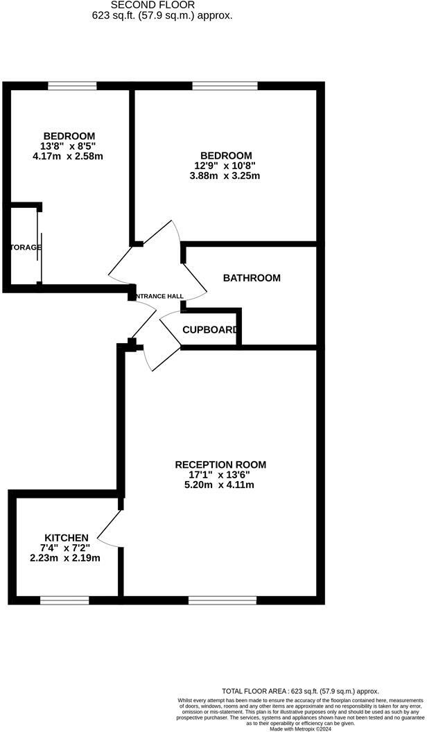
This bright two-bedroom second-floor flat sits in a Victorian period building, moments from Hastings town centre, the beach and the mainline station with links to London. The spacious living room (approx. 17'1" x 13'6") opens to a fitted kitchen and provides room for dining and everyday living. Both bedrooms face Cornwallis Gardens, offering a leafy outlook and good natural light.
Sold with no onward chain and a long lease (139 years remaining), the property is well suited to first-time buyers or investors seeking central rental potential. The accommodation is presented in neutral tones and includes a family bathroom with a bath and shower over.
Buyers should note this is a leasehold flat in a very deprived area with a very high local crime score — factors that can affect resale and rental demand. Council tax is very cheap and flood risk is low. Overall size is average at about 679 sq ft, providing practical living space in an accessible urban location.
2 bedroom flat for sale in Cornwallis Gardens, Hastings, TN34 — £210,000 • 2 bed • 1 bath • 761 ft²
2 bedroom flat for sale in Cornwallis Gardens, Hastings, TN34 — £225,000 • 2 bed • 1 bath • 739 ft²
1 bedroom ground floor flat for sale in Cornwallis Gardens, Hastings TN34 1LX, TN34 — £129,950 • 1 bed • 1 bath • 468 ft²
2 bedroom flat for sale in Castledown Terrace, Hastings, TN34 — £220,000 • 2 bed • 1 bath • 603 ft²
2 bedroom flat for sale in Cornwallis Gardens, Hastings, TN34 — £300,000 • 2 bed • 1 bath • 1114 ft²
2 bedroom flat for sale in Castle Hill Road, Hastings, TN34 — £155,000 • 2 bed • 1 bath • 450 ft²


















































