**Standout Features:**
- Breathtaking countryside views
- Spacious three-bedroom layout
- Large garden ideal for outdoor activities
- Two detached garages for ample parking
- No onward chain for quick acquisition
- Excellent potential for modernisation and extension (STPP)
- Located in the sought-after village of Herongate
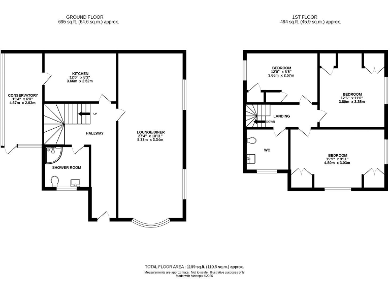
This charming three-bedroom semi-detached home, located in the picturesque village of Herongate, presents a unique opportunity for families seeking a tranquil retreat with stunning countryside vistas. With a generous garden that invites outdoor exploration and relaxation, this property allows for peaceful enjoyment of nature right at your doorstep. The inviting layout features a spacious living and dining area filled with natural light, a well-appointed kitchen leading into a bright conservatory, and a convenient shower room on the ground floor.
Upstairs, you will find three well-proportioned bedrooms, all equipped with built-in storage, complemented by a practical WC. The property’s notable features include two detached garages and ample off-street parking, making it ideal for families with multiple vehicles. While the home requires renovation to unlock its full potential, the attractive location and room for extension (subject to planning permission) ensure that it’s a sound investment. With no onward chain, seize this opportunity quickly to make this lovely family home your own, and enjoy the vibrant community and amenities that Herongate has to offer.
3 bedroom detached house for sale in Brentwood Road, Herongate, Brentwood, CM13 — £900,000 • 3 bed • 2 bath • 1919 ft²
3 bedroom detached house for sale in Brentwood Road, Herongate, Brentwood, CM13 — £600,000 • 3 bed • 1 bath • 1111 ft²
5 bedroom detached house for sale in Brentwood Road, Herongate, Brentwood, CM13 — £1,350,000 • 5 bed • 2 bath • 2497 ft²
4 bedroom semi-detached house for sale in Cricketers Row, Herongate, CM13 — £600,000 • 4 bed • 1 bath • 1267 ft²
3 bedroom detached house for sale in Whitby Avenue, Ingrave, Brentwood, CM13 — £799,995 • 3 bed • 3 bath • 803 ft²
3 bedroom semi-detached house for sale in Cricketers Row, Herongate, Brentwood, Essex, CM13 — £550,000 • 3 bed • 1 bath • 1184 ft²






















































































