Spacious character house with garden, close to top primary school.
Detached circa 2,497 sq ft family home with large garden and woodland beyond
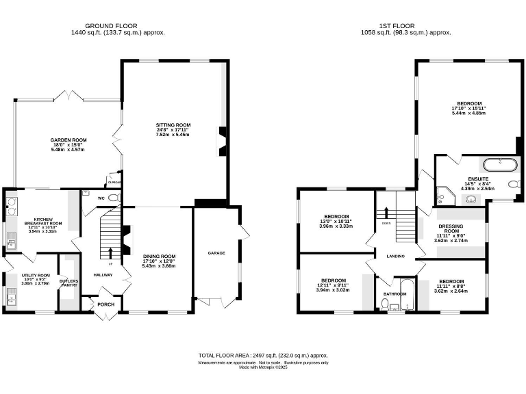
Set in the attractive village of Herongate, this substantial detached family home delivers almost 2,500 sq ft of traditional living space and a large rear garden bordering private woodland. The house has a generous ground-floor plan with a country-style kitchen, formal dining room, large sitting room with log burner and a sunlit garden room — ideal for family life and entertaining. The principal suite includes a walk-in dressing room and a four-piece ensuite; the dressing room could be reconfigured as a fifth bedroom if required.
The plot is a genuine strength: a paved patio leads to a well-kept lawn and then into a private wooded area, while a shingle driveway and two garages provide ample off-street parking. The property is chain free, freehold and close to Ingrave Johnstone Primary and other highly regarded schools, plus local pubs, shops, parks and woodland for family recreation.
Practical items to note: the house was built mid-20th century with solid brick walls (no known cavity insulation), double glazing with unknown installation date and a mains gas boiler with radiators. The exterior appears well maintained but the interior retains traditional fittings and some dated design details, so light modernisation will increase comfort and value. Council tax is described as quite expensive; there are no flood risks recorded.
This home will suit families seeking character, space and a large garden in a quiet village setting, and buyers comfortable carrying targeted updating to improve energy performance and modernise interiors. The layout and plot also offer scope for reconfiguration or extension subject to consent.
5 bedroom detached house for sale in Brentwood Road, Herongate, CM13 — £1,350,000 • 5 bed • 2 bath • 2131 ft²
3 bedroom detached house for sale in Brentwood Road, Herongate, Brentwood, CM13 — £900,000 • 3 bed • 2 bath • 1919 ft²
3 bedroom detached house for sale in Brentwood Road, Herongate, Brentwood, CM13 — £600,000 • 3 bed • 1 bath • 1111 ft²
4 bedroom semi-detached house for sale in Cricketers Row, Herongate, CM13 — £600,000 • 4 bed • 1 bath • 1267 ft²
4 bedroom semi-detached house for sale in Cricketers Lane, Herongate, CM13 — £920,000 • 4 bed • 3 bath • 1775 ft²
3 bedroom semi-detached house for sale in Cricketers Row, Herongate, Brentwood, Essex, CM13 — £550,000 • 3 bed • 1 bath • 1184 ft²














































































































































