**Standout Features:**
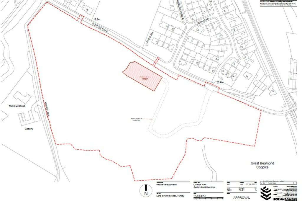
- Large parcel of development land with planning permission for 6 custom build units
- Total plot size: approximately 1,044 sq ft per unit
- Located in a tranquil, affluent suburb of Funtley, Fareham
- Immediate access to the upcoming residential development of 119 houses
- Surrounded by greenery and bordered by Great Beamond Coppice
- Excellent mobile signal and very low crime rate
**Potential Concerns:**
- Current broadband speeds are slow
- Local schools have varied Ofsted ratings, with some requiring improvement
**Summary:**
Embrace a rare opportunity with this expansive development land in the picturesque community of Funtley, Fareham. Spanning over 1,044 sq ft per plot, you have planning permission to create six custom build units—perfect for investors or those looking to build their dream home. Enjoy the benefits of a strategic location as this greenfield site is positioned next to a wider residential development of 119 homes, ensuring seamless integration into a thriving community.
The site is enriched by lush surrounding greenery and mature borders, creating a serene environment for potential residents. With excellent mobile connectivity and a very low crime rate, your future project promises comfort and security. Although broadband speeds are slower in the area, the immense potential and exclusivity of this parcel make it a unique investment opportunity that is not expected to last long. Envision the possibilities and act quickly to secure your foothold in this blossoming suburb!
Plot for sale in Newgate Lane, Fareham, PO14 — £300,000 • 1 bed • 1 bath • 1583 ft²
2 bedroom semi-detached house for sale in Funtley Road, Fareham, PO15 — £465,504 • 2 bed • 2 bath • 1044 ft²
Plot for sale in Segensworth Road, Fareham, PO15 — £300,000 • 1 bed • 1 bath
Land for sale in The Avenue, Titchfield, Fareham, Hampshire, PO14 — £1,100,000 • 1 bed • 1 bath • 12813 ft²
4 bedroom semi-detached house for sale in Funtley Road, Fareham, PO15 — £465,504 • 4 bed • 1 bath • 1044 ft²
3 bedroom semi-detached house for sale in Funtley Road, Fareham, PO15 — £465,504 • 3 bed • 1 bath • 1044 ft²






