**Standout Features:**
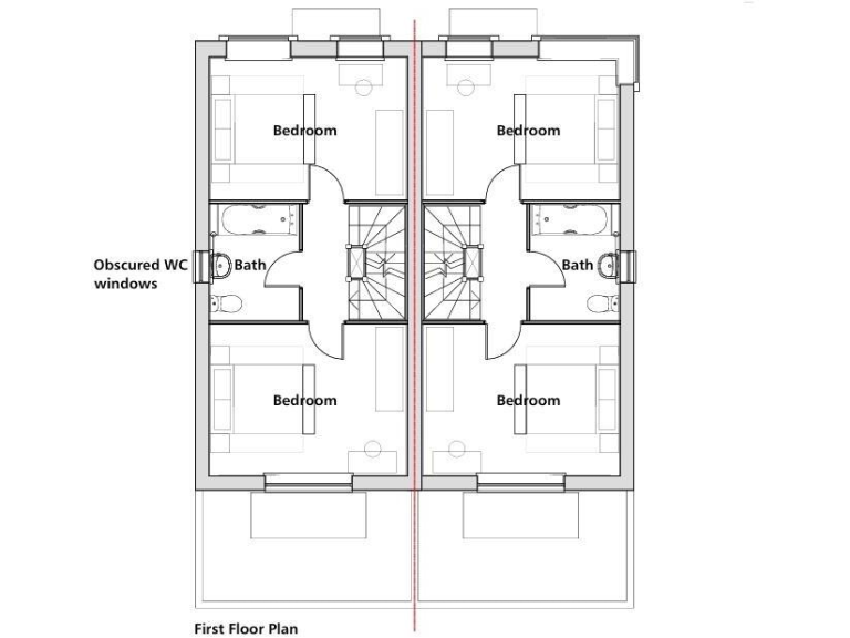
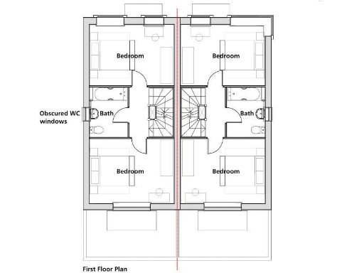
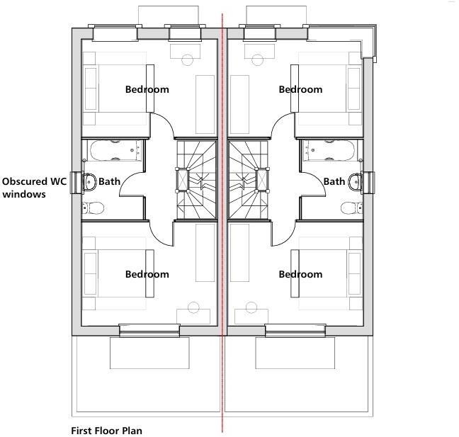
- **Full Planning Permission**: Approved for two, 3-bedroom semi-detached houses.
- **Prime Location**: Situated in a semi-rural area on the outskirts of Titchfield, offering a blend of tranquility and accessibility.
- **Freehold Development**: Provides flexibility for future ownership and potential expansion.
- **Excellent Connectivity**: Close to Fareham Station and easy access to Southampton Airport.
- **Affluent Area**: Nestled in an affluent neighborhood with a variety of local amenities and recreational options.
- **Family-Friendly Education Options**: Proximity to several well-rated primary schools and secondary educational institutions.
This expansive freehold plot offers an extraordinary opportunity for developers and investors. Located just 1.2 miles from Titchfield Village, this substantial land comes with full planning permission for the construction of two modern, 3-bedroom semi-detached houses, complete with allocated parking. Surrounded by the serene beauty of a semi-rural setting, the area boasts excellent mobile and broadband connectivity, making it an attractive option for families seeking comfort and modern conveniences.
Although the existing building will need to be demolished, the large plot offers ample space for creativity and design in future residential projects. The nearby amenities include easy access to public transport, leisure activities, and well-regarded schools, catering to the needs of potential occupants. With growing interest in the region, this opportunity is not to be missed—secure your foothold in this desirable location today!
Plot for sale in Newgate Lane, Fareham, PO14 — £300,000 • 1 bed • 1 bath • 1583 ft²
Land for sale in The Avenue, Titchfield, Fareham, Hampshire, PO14 — £1,100,000 • 1 bed • 1 bath • 12813 ft²
Land for sale in Land south of Funtley Road, Fareham, Hampshire, PO15 — £200,000 • 1 bed • 1 bath • 1044 ft²
Land for sale in Robann Park, 139 Southampton Road, Titchfield, Fareham, PO14 4PR, PO14 — POA • 1 bed • 1 bath
Land for sale in Mays Lane, Stubbington, PO14 — £255,000 • 1 bed • 1 bath
Plot for sale in Willow Drive, Soberton, Southampton, Hampshire, SO32 — £450,000 • 1 bed • 1 bath • 3750 ft²






















