Tenanted two-bed freehold with immediate income and refurbishment upside.
Tenanted investment producing £6,000 pa (c.7.5% gross yield)
Freehold two-bedroom flat in period stone terrace
Small overall size — compact rooms and limited internal space
Tenants long-term and wish to remain; sold with existing tenancy
Resident-only permit off-street parking available
Area classed as deprived — impacts growth and tenant profile
Buyer’s Premium payable on purchase — factor into costs
Potential for rental uplift with refurbishment or reconfiguration
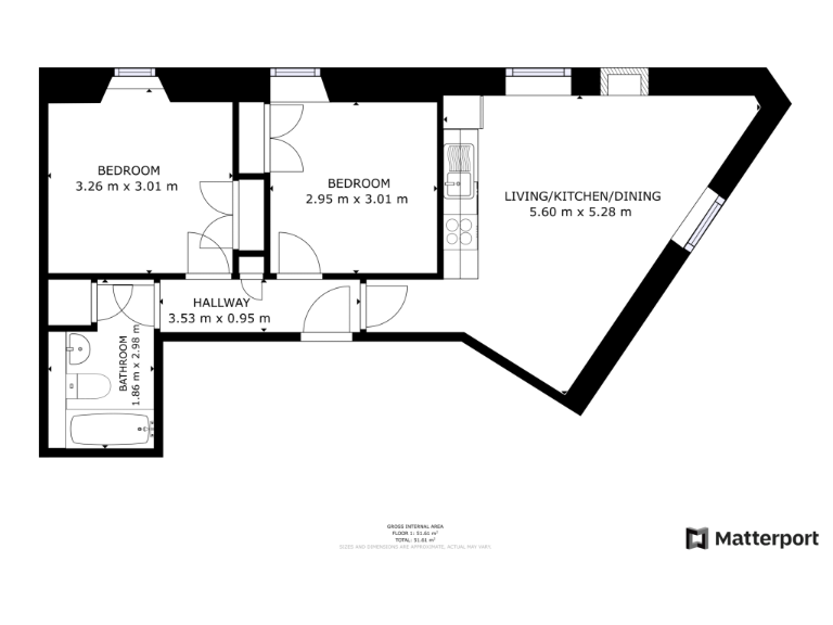
A compact two-bedroom flat on Holburn Street offered with long-term tenants in place — suited to buy-to-let investors seeking immediate income. The property occupies a small footprint within a traditional stone terrace and benefits from a resident-only permit parking space and fast broadband/mobilie signal. Current gross income is £6,000 per year, equating to a c.7.5% gross yield at the asking price of £80,000.
The flat is freehold and arranged as a lounge, kitchen, two bedrooms and a three-piece bathroom. Interiors are small and largely modernised in the living/kitchen area but the overall unit size limits uses; rental uplift may be achievable with targeted refurbishment or reconfiguration. The building’s period stone exterior offers street appeal typical of this part of Aberdeen.
Important investor considerations: the flat is sold with tenants who have occupied the property for several years and intend to remain, so the sale is for a tenanted investment rather than vacant possession. The area is classed as deprived, which affects tenant demand and long-term capital growth patterns; operating costs, management and void risk should be assessed. A Buyer’s Premium applies on completion — factor this into total purchase costs.
Suitable for an investor or developer adding a small-yield asset to a portfolio, this property offers immediate cashflow and straightforward room for incremental value via refurbishment or active management. Detailed tenancy and rental information is available in the Let Property Pack for serious enquiries.
2 bedroom flat for sale in Frederick Street, Aberdeen, AB24 — £80,000 • 2 bed • 1 bath • 667 ft²
2 bedroom flat for sale in Gallowgate, Aberdeen, Aberdeenshire, AB25 — £85,000 • 2 bed • 1 bath • 635 ft²
4 bedroom flat for sale in Seamount Road, Aberdeen, Aberdeenshire, AB25 — £103,000 • 4 bed • 2 bath
2 bedroom flat for sale in Erskine Street, Aberdeen, Aberdeenshire, AB24 — £58,000 • 2 bed • 1 bath
2 bedroom flat for sale in Rosemount Place, Aberdeen, Aberdeenshire, AB25 — £108,000 • 2 bed • 1 bath • 721 ft²
1 bedroom flat for sale in Skene Street, Aberdeen, AB10 — £60,000 • 1 bed • 1 bath


























































