**Standout Features:**
- Detached six/seven-bedroom period property in a tranquil rural setting.
- Spacious 3.5 acres of beautifully landscaped gardens, including a grass tennis court and plunge pool.
- Existing planning permission for a sizeable annex or conversion into two dwellings.
- Impressive internal dimensions with elegant reception areas and period features.
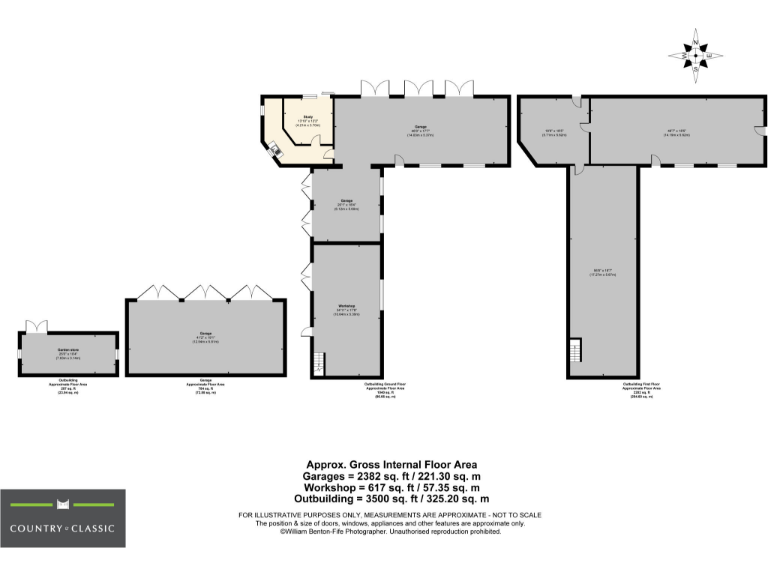
- Extensive garaging for up to 15 cars, workshop space, and 3 phase electricity.
- Panoramic countryside views adding to the property's allure.
Yarhampton House is a prestigious Tudor-style residence that offers the best of country living amid remarkable surroundings. Set across a vast 3.5-acre estate, this extraordinary period home boasts six to seven spacious bedrooms, including a grand reception hall with charming flagstone flooring and a stunning drawing room featuring a captivating oak-paneled fireplace. The 38 ft garden room, perfect for entertaining year-round, opens to captivating views in three directions, making gatherings a breeze in this scenic retreat.
The well-appointed farmhouse kitchen, complete with a four-door AGA and walk-in pantry, caters to the culinary enthusiast. Outside, indulge in the expansiveness of lush gardens and the exciting features of a grass tennis court and plunge pool—ideal for relaxation and outdoor recreation. The property also includes valuable outbuildings and significant potential for expansion or conversion, presenting a unique opportunity for astute buyers or investors seeking flexibility in a desirable location.
While the property benefits from its enchanting features and excellent mobile and broadband services, it is essential to note the council tax is positioned at the higher end. In this aging rural neighborhood near Great Witley and Stourport-on-Severn, Yarhampton House presents a unique living experience that seamlessly blends history with modern-day comforts. Act fast to secure this exceptional opportunity to create a dream home in a tranquil yet accessible setting!
Equestrian facility for sale in Worcester, Worcestershire, WR6 — £2,400,000 • 8 bed • 5 bath • 6006 ft²
6 bedroom detached house for sale in Worcester Road, Harvington, Kidderminster, DY10 — £1,350,000 • 6 bed • 3 bath • 6474 ft²
8 bedroom country house for sale in Ledbury, Herefordshire, HR8 — £2,700,000 • 8 bed • 8 bath • 6781 ft²
6 bedroom detached house for sale in White-Ladies-Aston, Worcester, WR7 — £1,200,000 • 6 bed • 5 bath • 4526 ft²
4 bedroom detached house for sale in Manor Road, Upper Bentley, Redditch, B97 — £700,000 • 4 bed • 3 bath • 2108 ft²
4 bedroom detached house for sale in Mamble, Kidderminster, DY14 — £900,000 • 4 bed • 4 bath • 4270 ft²














































































































































































































































































































