HA7 3RG - 4 bed spacious detached family home in Temple Mead Close, H…

View on Property Piper

4 bedroom detached house for sale in Temple Mead Close, Stanmore, HA7

Summary - 24 TEMPLE MEAD CLOSE STANMORE HA7 3RG

4 bed 2 bath Detached

Chain-free four-bed with garage and private garden, close to schools and green spaces.
- Detached four-bedroom home with two bathrooms
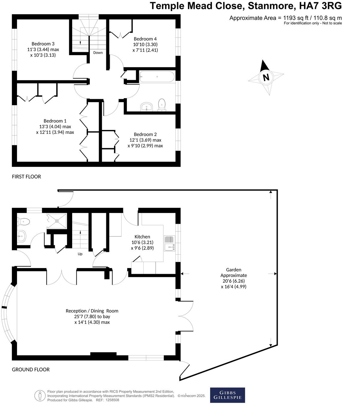
A spacious four-bedroom detached house arranged over two floors, offering practical family living in a quiet Stanmore close. The ground floor has an open-plan reception/dining room that flows to a private rear garden via French doors, plus a fitted kitchen and useful garage. Upstairs are four bedrooms and two bathrooms — straightforward accommodation for growing families or downsizers seeking easy layouts and off-road parking for multiple cars.

The property has been well cared for and benefits from double glazing installed after 2002, mains gas central heating and a decent-sized plot with front, side and rear garden space. At 1,193 sq ft the home is an average overall size that will suit everyday family life and offers scope for cosmetic updating to reflect modern tastes.

Important practical points: the location sits in a zone with a high flood risk and council tax is described as quite expensive. Though the house is largely maintained, some interior finishes are dated and buyers should allow for potential refurbishment and any flood-related insurance or mitigation costs.

Located close to good primary and secondary schools, local parks, a nearby lake and community amenities, the house offers family-friendly green space while keeping central London and major road links accessible for commuters. The property is freehold and offered chain free, making it straightforward to move into once checks and flood considerations are addressed.

Property Details

Brochure Descriptions

Image Descriptions

Floorplan Description

Rooms

Textual Property Features

Target Audience

AI Tags

Detected Visual Features

EPC Details

Nearby Schools

Nearest Bars And Restaurants

,,,,}

Nearest General Shops

,,}

Nearest Grocery shops

,,}

Nearest Supermarkets

,,}

Nearest Religious buildings

,,}

Nearest Medical buildings

,,,}

Nearest Airports

,}

Nearest Leisure Facilities

,,,,}

Nearest Tourist attractions

,,}

Nearest Train stations

,,,,}

Nearest Bus stations and stops

,,,,}

Nearest Hotels

,,}

Tags

Local Market Stats

AirBnB Data

Similar Properties

Meta

High Res Images

Compatible Images

Low res Images

Thumbnails

Raw Images

High Res Floorplan Images

Compatible Floorplan Images

Low res Floorplan Images

FloorplanImages Thumbnail

Raw Floorplan Images