Consent granted for four homes on a large freehold plot in sought-after Spofforth.
Full planning permission for four dwellings (Decision No: 2C 24/01119/FUL)
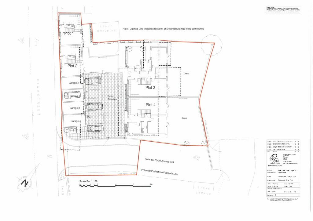
A rare development opportunity in the heart of Spofforth with full planning permission (Decision No: 2C 24/01119/FUL) for four dwellings: two two-bedroom cottages fronting the High Street and two three-bedroom semi-detached houses to the rear. The site sits on a large freehold plot with individual plot sizes from 1,052 sq ft to 2,002 sq ft and includes provision for garages, a central driveway, and communal grassed areas.
This location offers strong village appeal — excellent mobile signal, fast broadband, very low crime and easy access to Harrogate (c.5 miles) and Wetherby (c.3 miles). Local schools are well-rated and the setting is attractive for owner-occupiers or buy-to-let purchasers seeking family-sized homes in an affluent rural catchment.
The permission follows demolition of existing farm buildings; buyers should factor demolition, site-preparation and build costs into their budget. Planning was handled by b2 architecture (Paul Anderton) and full documents are available online. Vacant possession will be given on completion. This parcel suits a developer or investor who wants a cleared, consented village site with modern designs that retain a stone, characterful aesthetic.
Land for sale in Moorland View, Harrogate, HG2 — £375,000 • 4 bed • 3 bath • 1300 ft²
4 bedroom detached house for sale in Spofforth, Park House Green, HG3 — £565,000 • 4 bed • 2 bath • 1646 ft²
3 bedroom semi-detached house for sale in Wetherby, Carr Lane, LS22 — £530,000 • 3 bed • 1 bath • 1254 ft²
4 bedroom detached house for sale in Follifoot Lane, Spofforth, Harrogate, HG3 — £1,000,000 • 4 bed • 2 bath • 2766 ft²
Residential development for sale in York Road, LS22 — POA • 1 bed • 1 bath
Land for sale in Carlton Lane, Lofthouse, Wakefield, West Yorkshire, WF3 3LJ, WF3 — £110,000 • 1 bed • 1 bath


































