Chain-free first-floor flat near Sydenham Station and Crystal Palace Park.
Chain-free two double bedrooms
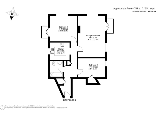
A bright, purpose-built two-bedroom flat on the first floor, offered chain-free with a long lease (approx. 177 years). The open-plan living and dining space, twin balconies and ample natural light give the apartment an airy, modern feel suited to first-time buyers and young professionals. Two double bedrooms and good internal storage make everyday living straightforward.
Practical benefits include residents’ off-street parking, communal gardens, external storage for bikes/buggies and convenient access to Sydenham Station and Crystal Palace Park. The building’s mid-20th-century brick construction feels sturdy, and mains gas central heating with a boiler and radiators is already in place.
Be aware this is a leasehold flat with an average annual service charge of around £1,655 and an ongoing ground rent of about £10. The building has double glazing installed before 2002 and walls are assumed to have no cavity insulation, so budget for potential improvements if higher thermal performance is desired. There is a single bathroom and the apartment is average-sized overall.
This property suits a buyer seeking a well-located, move-in-ready home with sensible future improvement potential. Investors will value the long lease and transport links; first-time buyers will appreciate chain-free purchase and practical communal amenities.
2 bedroom flat for sale in 1F Peak Hill, London, SE26 4LS, SE26 — £310,000 • 2 bed • 1 bath • 594 ft²
2 bedroom flat for sale in Wavel Place, Sydenham, London, SE26 — £300,000 • 2 bed • 1 bath • 527 ft²
2 bedroom flat for sale in Radcliffe House, 3 Worcester Close, SE20 — £399,995 • 2 bed • 2 bath • 651 ft²
2 bedroom flat for sale in Sydenham Hill, London, SE26 — £300,000 • 2 bed • 1 bath • 753 ft²
3 bedroom apartment for sale in Crescent Wood Road, London, SE26 — £250,000 • 3 bed • 1 bath • 785 ft²
2 bedroom flat for sale in Worcester Close, Anerley, London, SE20 — £325,000 • 2 bed • 2 bath • 663 ft²






































































