Generous two-bed flat with private garden, close to Commons and local schools.
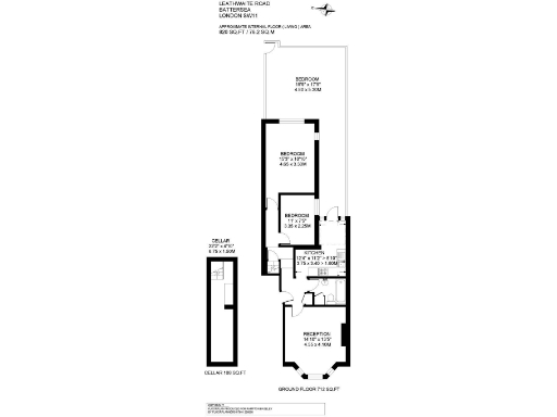
Spacious 820 sq ft two-bedroom ground-floor flat with private patio garden
Elegant reception with high cornicing, bay window and feature fireplace
Modern eat-in kitchen with integrated appliances and French doors to garden
Large cellar provides substantial storage or utility space
Share of freehold and a long lease — 165 years remaining
EPC D; solid-brick walls likely uninsulated — consider energy upgrades
Main heating: mains gas boiler and radiators; broadband and mobile excellent
No flooding risk; council tax band moderate
Step into a bright, characterful two-bedroom ground-floor flat on a quiet Battersea street between the commons. The elegant reception room retains high corniced ceilings, a feature fireplace and a large bay that fills the space with natural light — a comfortable living and entertaining area for a couple or small family. The eat-in kitchen is modern and practical, with integrated appliances and French doors that open onto a private patio garden with side access for bikes or muddy boots.
At approximately 820 sq ft this apartment is roomy by central-London two-bedroom standards. Both bedrooms overlook the garden; the larger bedroom has space for a desk. A well-appointed bathroom and substantial cellar storage add useful flexibility for daily living. The long lease (165 years) and share of freehold give ownership stability uncommon for similar flats.
Practical points to note: the building dates from the 1930s–40s and walls are solid brick with no assumed insulation, and the EPC is D, so future buyers should consider energy-efficiency upgrades. Heating is mains gas via boiler and radiators. Council tax is moderate and local amenities, outstanding primary schools and Clapham Common are all close by; Clapham Junction offers frequent rail services to central London.
This property will suit first-time buyers or downsizers seeking a bright, spacious flat with outdoor space and period charm, and investors looking for a well-located rental in a very affluent, highly educated neighbourhood. It offers ready-to-enjoy comfort now and clear potential for targeted improvement to reduce running costs and further enhance value.
2 bedroom apartment for sale in Lavender Sweep, SW11 — £675,000 • 2 bed • 1 bath • 640 ft²
2 bedroom apartment for sale in Kathleen Road, SW11 — £700,000 • 2 bed • 1 bath • 765 ft²
2 bedroom apartment for sale in Aliwal Road, London, SW11 — £725,000 • 2 bed • 2 bath • 731 ft²
2 bedroom flat for sale in Strathblaine Road, Clapham Junction, SW11 — £750,000 • 2 bed • 2 bath • 948 ft²
1 bedroom apartment for sale in Longbeach Road, London, SW11 — £630,000 • 1 bed • 1 bath • 818 ft²
3 bedroom apartment for sale in Latchmere Road, SW11 — £650,000 • 3 bed • 1 bath • 914 ft²






























































































