Spacious four-bed period house with modern kitchen and landscaped garden, ready for improvement.
Edwardian bay-front period features and high ceilings
Extended open-plan kitchen/diner with granite worktops
Four bedrooms across three floors, includes en-suite
Landscaped rear garden with patio and lawn
Solid brick walls assumed uninsulated — upgrade recommended
EPC rating E (48) — potential for higher energy costs
Freehold tenure; moderate council tax (Band D)
Modest plot size in busy, cosmopolitan student/professional area
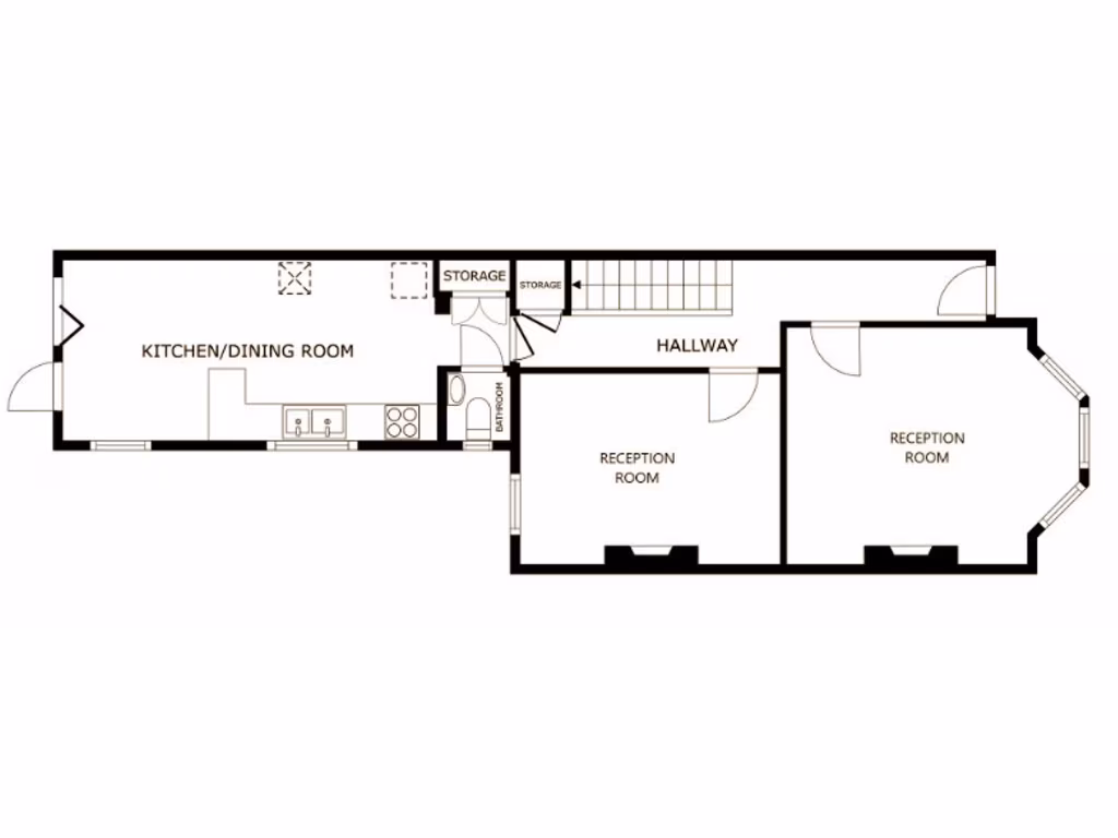
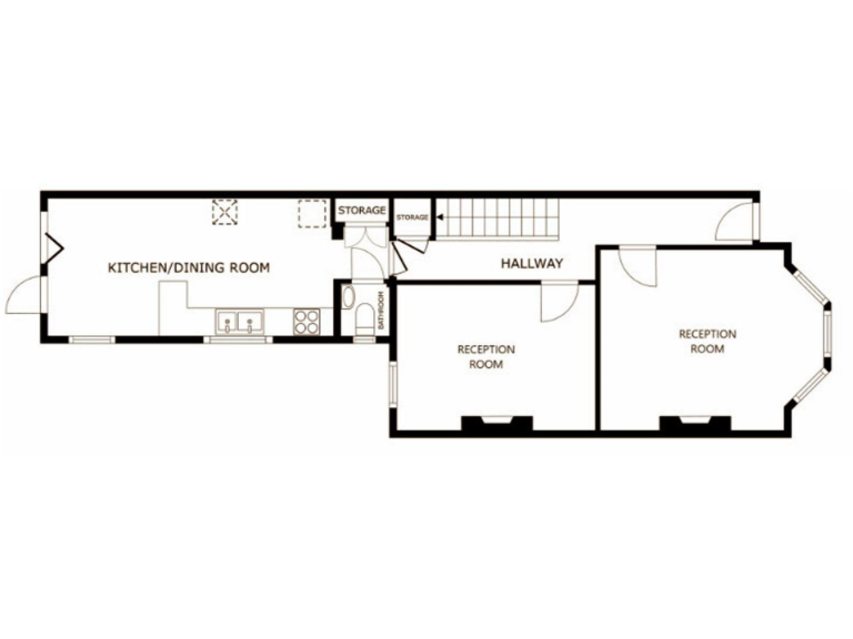
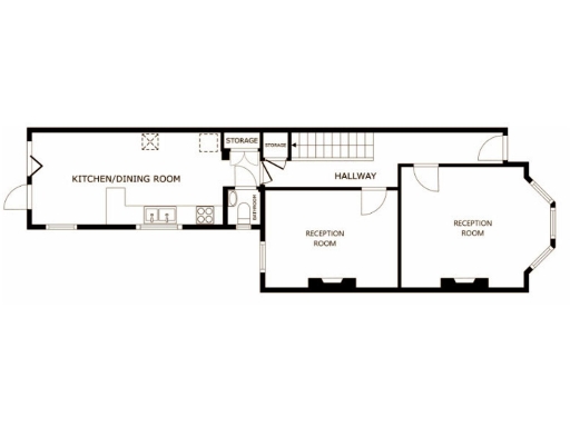
Occupying a mid-terrace Edwardian shell, this bay-fronted Clarendon Park home blends period detail with modern living across three floors. High ceilings, a bay window and original fireplace anchor the living room, while the extended open-plan kitchen/diner offers contemporary fixtures and garden access for everyday family life and entertaining.
The house provides four bedrooms, a family bathroom and a second-floor en-suite — well suited to families, sharers or professionals needing flexible bedrooms and home-working space. The landscaped rear garden and patio create a private outdoor room despite the property's modest plot size.
Practical considerations: the EPC is rated E (48) and the solid brick walls are assumed to lack cavity insulation, which could mean higher heating costs until improved. The property is freehold, in a very affluent but cosmopolitan student and professional neighbourhood, with fast broadband and excellent mobile signal.
This home offers strong character and scope to improve energy performance and personalise finishes. Buyers seeking a spacious period house near schools, local amenities and good transport links will find this a compelling, adaptable option.
5 bedroom semi-detached house for sale in Howard Road, Clarendon Park, Leicester, LE2 — £400,000 • 5 bed • 2 bath • 1313 ft²
2 bedroom terraced house for sale in Howard Road, Clarendon Park, Leicester, LE2 — £235,000 • 2 bed • 1 bath • 708 ft²
4 bedroom semi-detached house for sale in Howard Road, Clarendon Park, Leicester, LE2 — £325,000 • 4 bed • 1 bath • 1307 ft²
2 bedroom terraced house for sale in Clarendon Park Road, Clarendon Park, Leicester, LE2 — £245,000 • 2 bed • 1 bath • 786 ft²
4 bedroom terraced house for sale in Knighton Road, Leicester, LE2 — £475,000 • 4 bed • 2 bath • 2110 ft²
5 bedroom semi-detached house for sale in Clarendon Park Road, Leicester, LE2 — £600,000 • 5 bed • 1 bath • 1830 ft²






























































































































































































































