Steps from Whitton High Street and strong local schools.
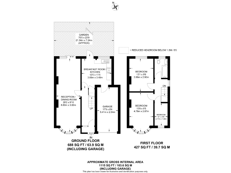
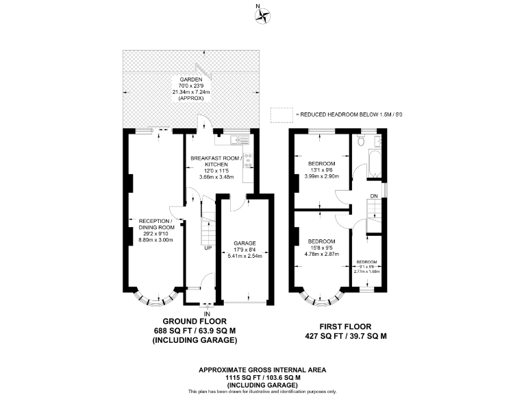
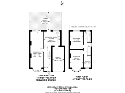
Spacious three-bedroom semi-detached family home, about 1,115 sq ft
Double reception room providing distinct living and dining spaces
Large private garden plus garage and off-street parking
Potential to extend (subject to planning permission)
Single bathroom only — may be inconvenient for larger families
Solid brick walls assumed uninsulated — likely upgrade needed
Close to Whitton High Street, stations and strong local schools
Fast broadband, low crime and very affluent area
Set on a quiet residential road in Whitton, this 1930s semi delivers flexible living for growing families. The double reception room creates clear living and dining zones, and large windows bring plenty of natural light. A generous garden, garage and off‑street parking add practical space for children and cars.
The kitchen offers good worktop area and dine-in potential; there's clear scope to extend (subject to planning) to increase living space or add a bathroom. Fast broadband, low crime and strong nearby schools make this a practical family choice close to Whitton High Street and rail connections.
Buyers should note the home has a single bathroom and solid brick walls likely without cavity insulation, so some energy upgrades or refurbishment may be required. Overall, this freehold property of about 1,115 sq ft suits families seeking period character with clear potential to modernise and extend.
3 bedroom semi-detached house for sale in Ashley Drive, Whitton, Twickenham, TW2 — £650,000 • 3 bed • 1 bath • 1148 ft²
3 bedroom semi-detached house for sale in Alton Gardens, Twickenham, TW2 — £675,000 • 3 bed • 1 bath • 812 ft²
3 bedroom semi-detached house for sale in Whitton Waye, Whitton, Hounslow, TW3 — £599,950 • 3 bed • 1 bath • 838 ft²
3 bedroom semi-detached house for sale in Whitton Waye, Whitton, Hounslow, TW3 — £650,000 • 3 bed • 1 bath • 1074 ft²
3 bedroom semi-detached house for sale in Redfern Avenue, Whitton, Hounslow, TW4 — £650,000 • 3 bed • 1 bath • 1043 ft²
3 bedroom semi-detached house for sale in Constance Road, Twickenham, TW2 — £799,950 • 3 bed • 1 bath • 1290 ft²










































































