Freehold 0.43‑acre plot with outline consent for three family homes — vacant possession..
- Outline planning consent for three 3‑bed, two‑storey dwellings
- Freehold site with vacant possession
- Size c.0.43 acres (0.174 ha) — very large village plot
- All matters reserved: reserved matters and conditions remain
- Located on a cul‑de‑sac, surrounded by existing housing
- No flood risk; fast broadband and average crime levels
- Guide price: Offers invited around £250,000
- Decision notice and topo survey available from council
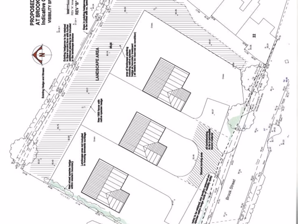
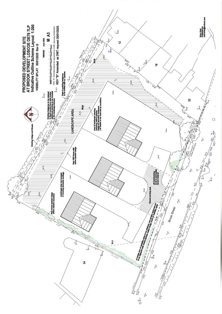
A substantial residential development parcel extending to approximately 0.43 acres (0.174 ha) in Loscoe, offered freehold with vacant possession. The site benefits from outline planning consent (AVA/2024/0542, issued 10 June 2025) for three, two‑storey, three‑bedroom homes, making it a clear opportunity for a small infill scheme in an established suburban setting.
The plot sits between existing houses on a cul‑de‑sac off Brook Street, around one mile north of Heanor. Good local amenities include bus links, nearby primary and secondary schools (including an Outstanding secondary), fast broadband and low flood risk. The position beside open fields and some woodland gives a semi‑rural feel while remaining well connected to the town.
Buyers should note the consent is outline with all matters reserved — reserved matters, detailed design, and any planning conditions or infrastructure requirements remain to be agreed with the local authority. The surrounding built‑up context also means access, layout and boundary treatments will need careful consideration when preparing detailed proposals.
This is suited to small housebuilders, local developers or investor‑builders seeking a modest, quick‑to‑deliver scheme with planning groundwork already in place. Decision notice, topo survey and indicative designs are available from the local planning portal for due diligence prior to offer.
Land for sale in Land on the South East Side of Burns Street, Heanor, Derbyshire, DE75 — £500,000 • 3 bed • 1 bath
Land for sale in Derby Road, Risley, Derby, DE72 — £250,000 • 4 bed • 2 bath • 658 ft²
Land for sale in 128 Church Street, Eastwood, Nottingham, NG16 — £100,000 • 1 bed • 1 bath • 2585 ft²
Land for sale in High Street, Tibshelf, DE55 — £350,000 • 1 bed • 1 bath
Land for sale in Pilsley Road, Danesmoor, S45 — £400,000 • 1 bed • 1 bath
Land for sale in Parkside, Somercotes, Alfreton, DE55 — £495,000 • 1 bed • 1 bath


















