Large two-bedroom chalet on a big plot with extension potential, chain-free..
Chain-free detached chalet bungalow on a quiet cul-de-sac
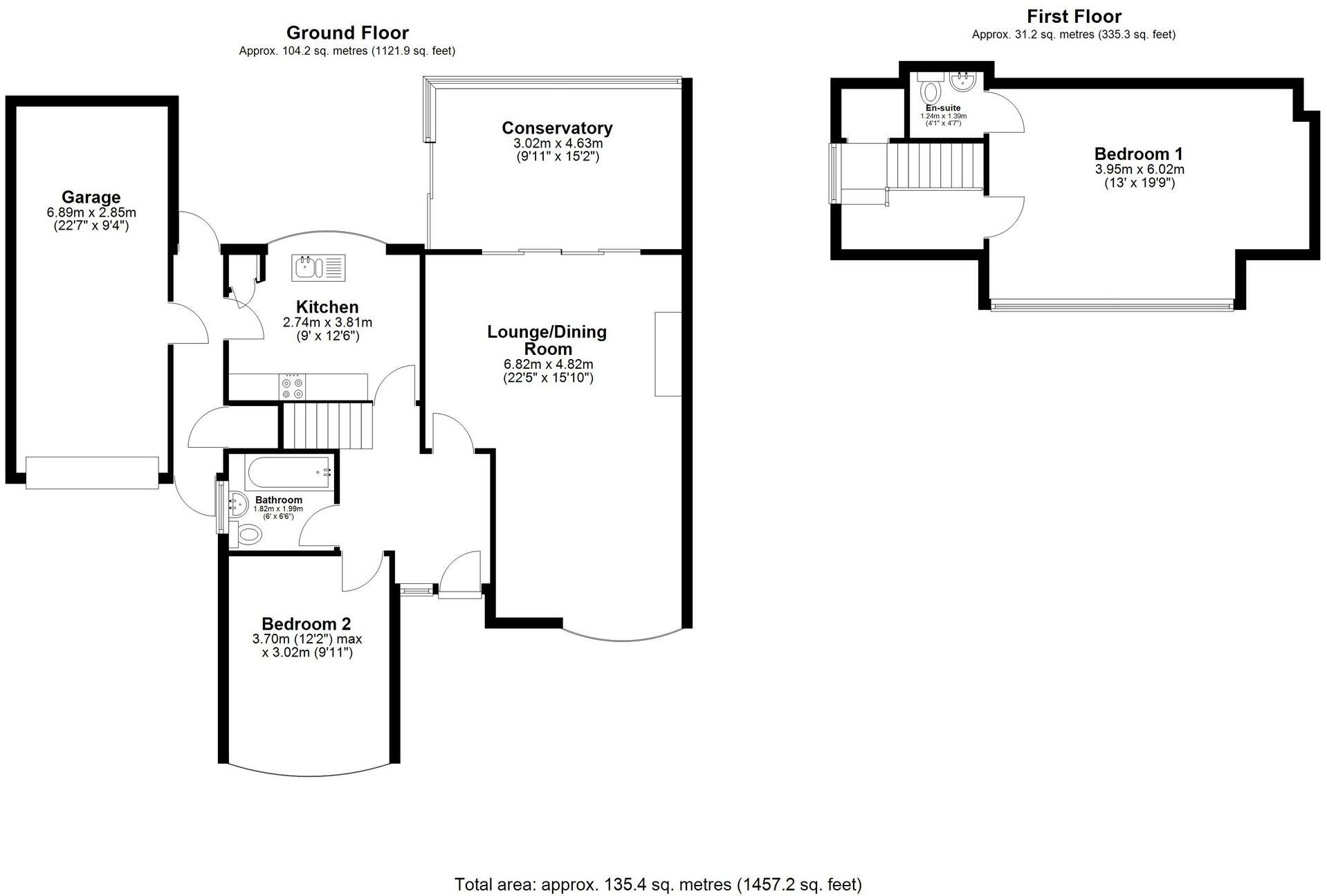
Large overall size (~1,457 sq ft) with large plot and garden
Garage and driveway parking for multiple vehicles
Two double bedrooms; large principal bedroom with en-suite
Conservatory plus spacious lounge/dining room with bay window
Requires renovation and modernisation throughout
Potential to extend (STPP) to increase living space and value
Council tax above average — factor into running costs
Set on a quiet cul-de-sac in sought-after Melbourn, this detached two-bedroom chalet bungalow offers generous living space and a large plot ideal for downsizers or buyers seeking single-level living with uplift potential. The property is chain-free and freehold, with a sizable lounge/dining room, conservatory, garage and driveway. It sits within walking distance of local shops and village amenities.
The house has clear scope to add value: the vendor notes potential to extend (subject to planning permission). Interiors are spacious — the ground floor includes a reception room, kitchen, conservatory and a ground-floor bathroom, while the first floor features a particularly large main bedroom with an en-suite. The overall footprint is notably large at approximately 1,457 sq ft, giving room for reconfiguration.
Important to note: the property needs renovation and modernisation throughout, and will require an incoming buyer to budget for updating. Council tax is above average. Despite cosmetic and updating work, the large plot, garage, driveway and cul-de-sac location make this a practical purchase for someone looking to create a comfortable long-term home or to increase value through refurbishment.
The setting benefits from excellent mobile and fast broadband, low flood risk and access to good local primary schools. For buyers seeking village life with easy links to Royston and Cambridge, this chalet presents a solid renovation project with strong potential once updated.
2 bedroom semi-detached house for sale in Orchard Road, Melbourn, SG8 — £375,000 • 2 bed • 1 bath • 950 ft²
2 bedroom semi-detached bungalow for sale in Carlton Rise, Melbourn, SG8 — £350,000 • 2 bed • 1 bath • 667 ft²
3 bedroom detached house for sale in High Street, Melbourn, SG8 — £525,000 • 3 bed • 2 bath • 1308 ft²
2 bedroom detached bungalow for sale in Water Lane, Melbourn, Royston, Cambridgeshire, SG8 6AY, SG8 — £325,000 • 2 bed • 1 bath • 594 ft²
5 bedroom detached bungalow for sale in Water Lane, Melbourn, Royston, SG8 — £750,000 • 5 bed • 2 bath • 1411 ft²
2 bedroom detached bungalow for sale in Carlton Rise, Melbourn, Royston, SG8 — £400,000 • 2 bed • 1 bath • 916 ft²


































































































