**Standout Features:**
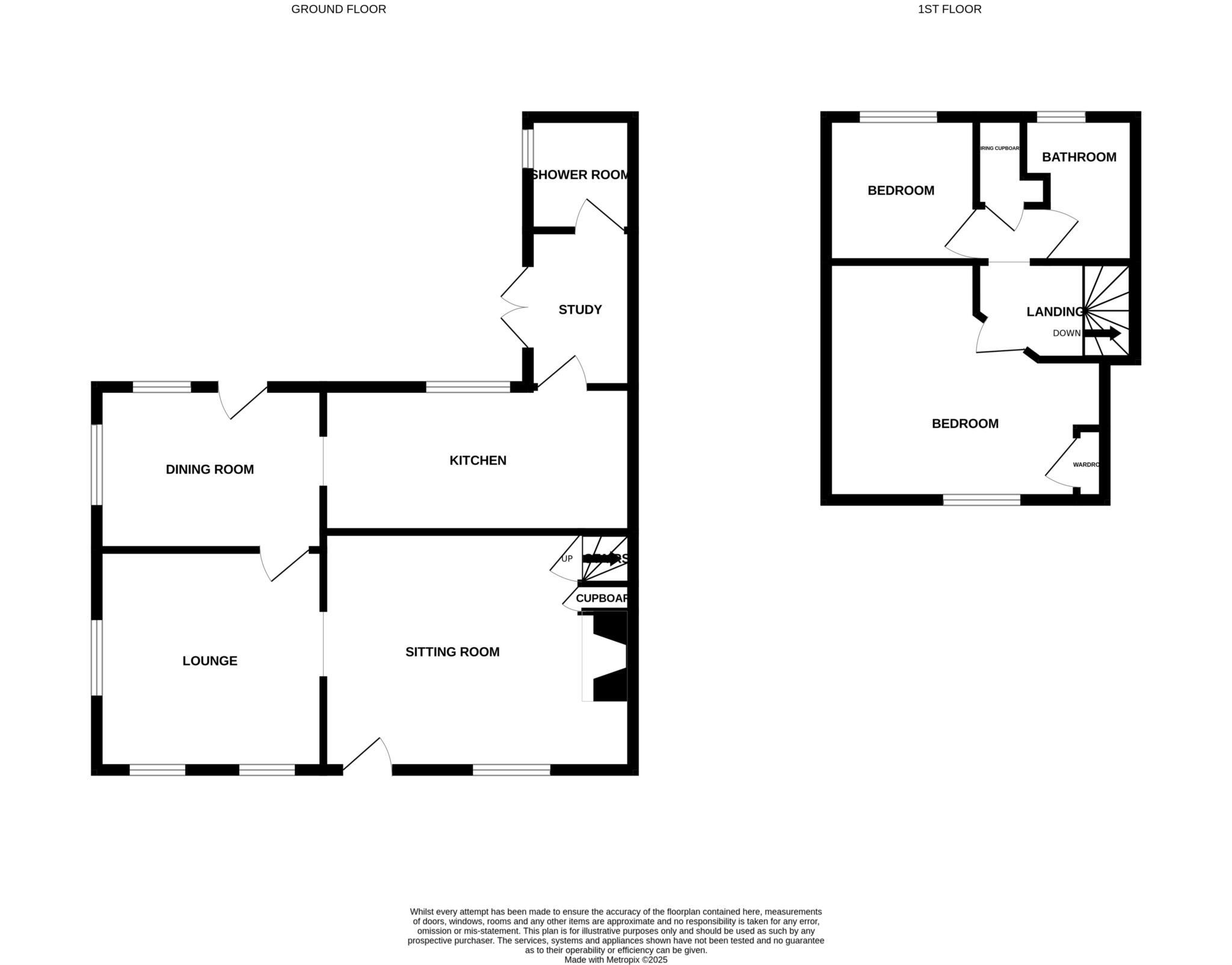
- Charming 2-bedroom semi-detached cottage dating back to 1770
- Scenic field views with an enclosed, sun-drenched rear garden
- Two shower rooms and a family bathroom, enhancing convenience
- Off-road parking with a shingled driveway
- Located in a tranquil village with very low crime rates
- Average broadband speeds and mobile connectivity
- Surrounded by affluent communities with well-rated primary schools nearby
**Summary:**
Discover the quintessential English charm of this delightful two-bedroom cottage nestled in the serene village of Little Plumstead, set against beautiful field views. This unique property, built in 1770, combines character with modern comforts, featuring a cozy lounge with a rustic wood burner, a bright dining room, and a versatile study/sun room that opens up to an enclosed garden, perfect for gardening enthusiasts or sun-seekers.
Boasting two shower rooms and a family bathroom, this home is ideal for families or as a peaceful retreat. The fully enclosed garden flourishes with mature plants and offers both lawn space and a shingled area for relaxation. Enjoy off-road parking and the convenience of easy access to Norwich city center and major roads for commuting or exploring the picturesque Norfolk Broads.
While the cottage requires some modernization, it presents an exciting opportunity for renovation, allowing you to infuse your personal touch into this historic home. With affordable council tax and a sought-after location near reputable primary schools, don’t miss the chance to secure your idyllic countryside escape! Act fast—properties like this don’t linger long in the market!
5 bedroom cottage for sale in Post Office Road, Little Plumstead, NR13 — £475,000 • 5 bed • 3 bath • 2067 ft²
2 bedroom cottage for sale in Broad Lane, Little Plumstead, Norwich, NR13 — £325,000 • 2 bed • 2 bath • 793 ft²
3 bedroom detached bungalow for sale in Thatched Cottage, Middle Road, Great Plumstead, Norfolk, NR13 — £450,000 • 3 bed • 2 bath • 1333 ft²
3 bedroom semi-detached house for sale in Penrice Road, Little Plumstead, NR13 — £280,000 • 3 bed • 2 bath • 573 ft²
3 bedroom cottage for sale in Sandhole Lane, Little Plumstead, Norwich, NR13 — £400,000 • 3 bed • 2 bath • 1173 ft²
2 bedroom cottage for sale in The Common, Freethorpe, NR13 — £225,000 • 2 bed • 2 bath • 753 ft²






















































































































