Affordable three-bed with garden and good transport links.
Chain-free freehold Victorian mid-terrace, ideal for first-time buyers
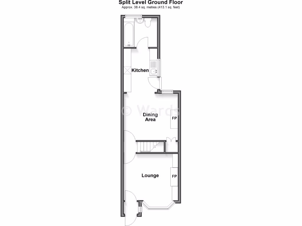
A chain-free Victorian mid-terrace offering an affordable freehold entry onto the property ladder in Gillingham. The house has two reception rooms, three bedrooms and a private rear garden — useful outdoor space for family gatherings or a low-maintenance outside area.
The property is compact at about 754 sq ft and will suit buyers seeking a modest starter home with scope to personalise. The building is solid-brick construction typical of 1900–1929 stock; there is no confirmed wall insulation and some external wear visible, so renovation and updating will improve comfort and value. Heating is mains gas via a boiler and radiators; glazing is double but install date is unknown.
Location is practical: walking distance to several primary and secondary schools, local shops and services, and good road links to the wider Medway area. It is offered freehold and chain free, making for a straightforward purchase process for a first-time buyer prepared to do some work.
Buyers should note material drawbacks plainly: the home is small, in a deprived neighbourhood with above-average crime levels, and the rear yard and exterior show signs of wear and will need TLC. There is a single bathroom and modest room sizes, so consider layout and storage changes if family living is planned.
3 bedroom terraced house for sale in Cowper Road, Gillingham, Kent, ME7 — £155,500 • 3 bed • 1 bath • 754 ft²
3 bedroom terraced house for sale in Albany Road, Gillingham, Kent, ME7 — £209,000 • 3 bed • 1 bath • 776 ft²
3 bedroom terraced house for sale in Pretoria Road, Gillingham, ME7 — £220,000 • 3 bed • 2 bath • 788 ft²
3 bedroom terraced house for sale in Milburn Road, Gillingham, Kent, ME7 — £270,000 • 3 bed • 1 bath • 872 ft²
3 bedroom terraced house for sale in Regent Road, Gillingham, Kent, ME7 — £250,000 • 3 bed • 1 bath • 910 ft²
3 bedroom terraced house for sale in King William Road, Gillingham, Kent, ME7 — £260,000 • 3 bed • 1 bath • 663 ft²






















































