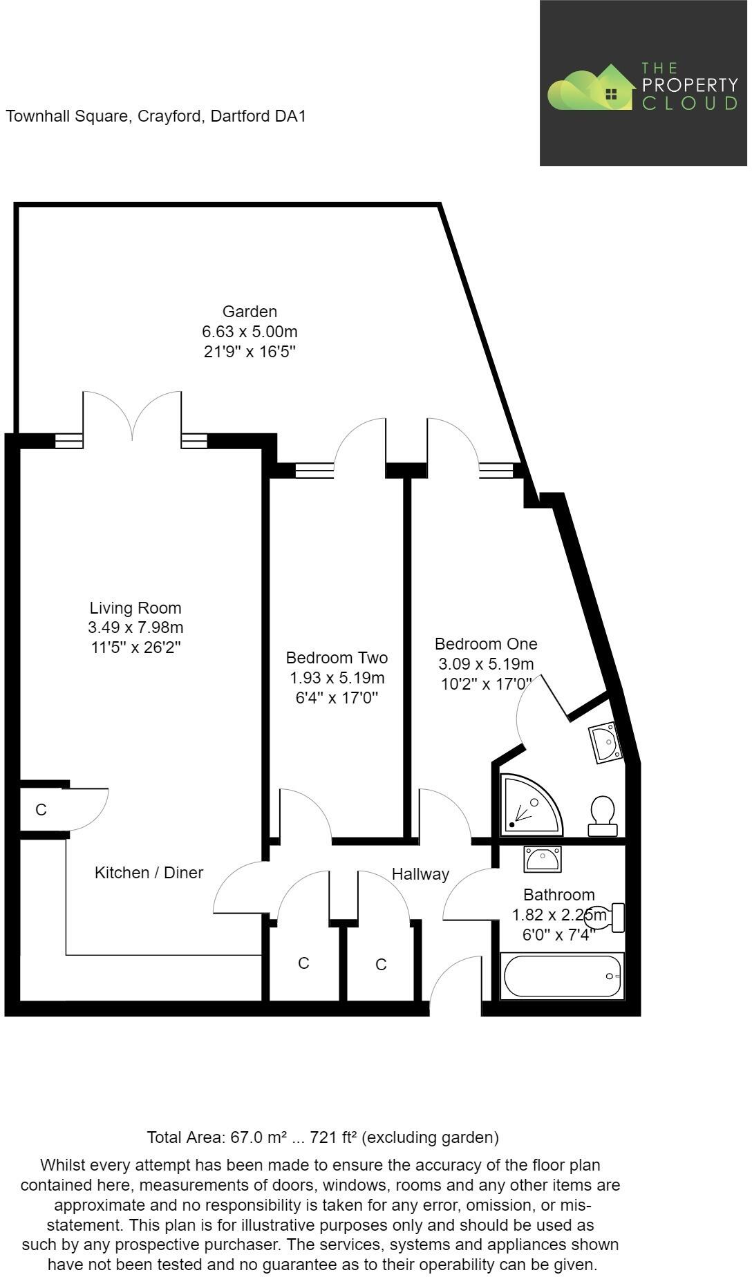
721 sq ft modern ground-floor flat with private garden and allocated parking, near Crayford station..
721 sq ft ground-floor apartment with private 22ft x 17ft garden
Two double-sized bedrooms, ensuite shower plus main bathroom
Open-plan living area with contemporary fitted kitchen
Allocated underground parking bay and off-street parking
111 years remaining on the lease (leasehold tenure)
Service charge approx. £2,832 pa (£236 pcm)
200 yards to Crayford Train Station; close to shops and schools
Medium flood risk; buyers should verify management paperwork
A modern, ground-floor two-bedroom apartment offering 721 sq ft of open-plan living and a private 22ft x 17ft rear garden. Built post-2012, the flat has double glazing, contemporary kitchen fittings, an ensuite shower and a main bathroom — ready to move into with neutral, modern finishes.
This property will particularly suit first-time buyers or commuters: Crayford Train Station is around 200 yards away (a few minutes’ walk), and Crayford High Street amenities, schools and gyms are all close by. An allocated underground parking bay and off-street parking add practical convenience for drivers.
Practical considerations are straightforward and clearly stated. The lease has 111 years remaining and the service charge is approximately £2,832 per year (£236 per month). The property forms part of a community-heated scheme and mains gas supply; council tax is in Band C.
Notable drawbacks: the area carries a medium flood risk and the service charge is a recurring cost to budget for. The property is leasehold, so buyers should verify lease and management documents before committing. Overall, this is a well-located, low-maintenance modern flat with immediate commuter appeal and potential rental/investment interest.
2 bedroom apartment for sale in Townhall Square, Crayford, Dartford, Kent, DA1 4FJ, DA1 — £250,000 • 2 bed • 1 bath • 711 ft²
2 bedroom apartment for sale in Alcock Crescent, Crayford, Dartford, Kent, DA1 — £280,000 • 2 bed • 2 bath • 696 ft²
1 bedroom flat for sale in Woodfall Drive, Crayford, Kent, DA1 — £210,000 • 1 bed • 1 bath • 506 ft²
1 bedroom flat for sale in Heatherbank Close, Crayford, Dartford, Kent, DA1 — £190,000 • 1 bed • 1 bath • 406 ft²
1 bedroom apartment for sale in Oldfield Place, Langley Square, Dartford, DA1 5WJ, DA1 — £240,000 • 1 bed • 1 bath • 528 ft²
2 bedroom maisonette for sale in Glebelands, Crayford, Kent, DA1 — £280,000 • 2 bed • 1 bath • 644 ft²














































































