KT22 8AQ - High street retail property for sale in 61 High Street, Lea…

View on Property Piper

High street retail property for sale in 61 High Street, Leatherhead, KT22 8AQ, KT22

Summary - 61 High Street,LEATHERHEAD,KT22 8AQ KT22 8AQ

1 bed 1 bath Retail Property (high street)

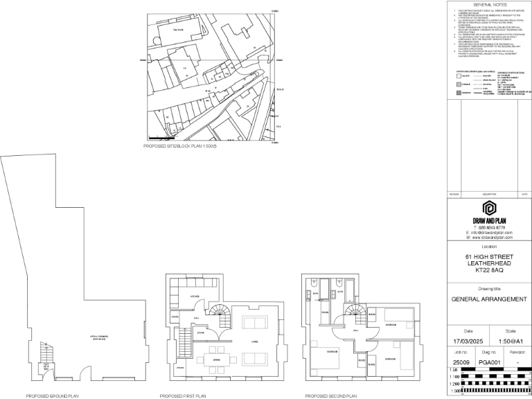
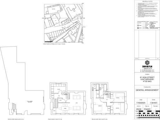
Freehold retail with approved residential conversion on upper floors.
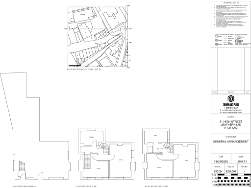
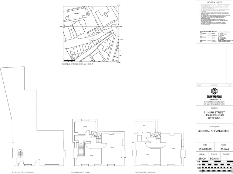
Freehold three-storey Georgian building with prominent High Street frontage
A rare freehold opportunity on Leatherhead High Street offering strong frontage and flexible use. The ground floor is configured as modern retail/office with air-conditioning, large glazed display and basement storage — immediately income-generating or ready for a new occupier. The 1st and 2nd floors currently provide office space but have planning approval for residential conversion (MVDC Ref: MO/2025/0470), unlocking rental or sale value once completed.

This property suits investors or small developers seeking a town-centre asset with commuter appeal. Leatherhead benefits from fast rail links to London, close M25 access and a busy retail catchment anchored by national retailers and multiple amenities. The building’s Georgian façade and high ceilings add character that can enhance finished residential units or a boutique commercial fit-out.

Be upfront about constraints: the plot is small with limited external space, and the location records a very high crime rate which may affect tenant mix, insurance and management costs. Broadband speeds are average and some internal refurbishment will be required to complete residential conversion and modernise services. Overall, the property offers clear repositioning potential in a prime high-street location for the right buyer prepared to manage practical and operational considerations.

Property Details

Brochure Descriptions

Image Descriptions

Floorplan Description

Rooms

Textual Property Features

Target Audience

AI Tags

Detected Visual Features

Nearby Schools

Nearest Bars And Restaurants

,,,,}

Nearest General Shops

,,}

Nearest Grocery shops

,,}

Nearest Supermarkets

,,}

Nearest Religious buildings

,,}

Nearest Medical buildings

,,,}

Nearest Airports

,}

Nearest Leisure Facilities

,,,,}

Nearest Tourist attractions

,,}

Nearest Train stations

,,,,}

Nearest Bus stations and stops

,,,,}

Nearest Hotels

,,}

Tags

Local Market Stats

AirBnB Data

Similar Properties

Meta

High Res Images

Compatible Images

Low res Images

Thumbnails

Raw Images

High Res Floorplan Images

Compatible Floorplan Images

Low res Floorplan Images

FloorplanImages Thumbnail

Raw Floorplan Images