KT22 8BZ - High street retail property for sale in 2 Bridge Street, Le…

View on Property Piper

High street retail property for sale in 2 Bridge Street, Leatherhead, KT22 8BZ, KT22

Summary - GROUND AND BASEMENT,2 Bridge Street,LEATHERHEAD,KT22 8BZ KT22 8BZ

1 bed 1 bath Retail Property (high street)

**Standout Features:**
- Unique Jacobean-style architecture
- Freehold property with income-generating ground floor retail space let until 2036
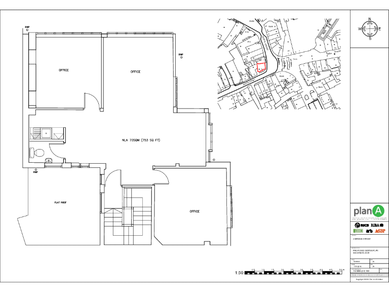
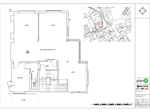
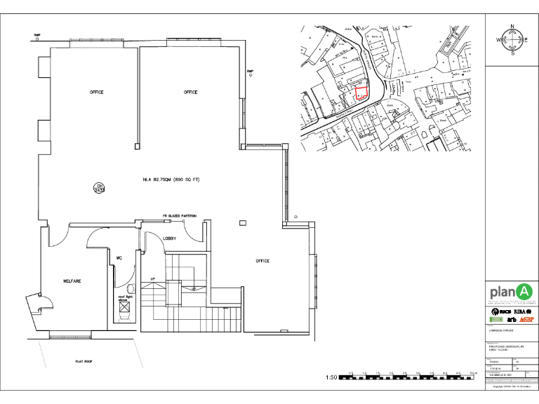
- Newly refurbished office accommodation on the first and second floors
- Central Leatherhead location, surrounded by a variety of amenities
- Excellent transport links, including fast train services to London
- Ample natural light in office spaces with high-quality finishes

**Potential Concerns:**
- Listed building status may limit renovation flexibility
- High local crime rate

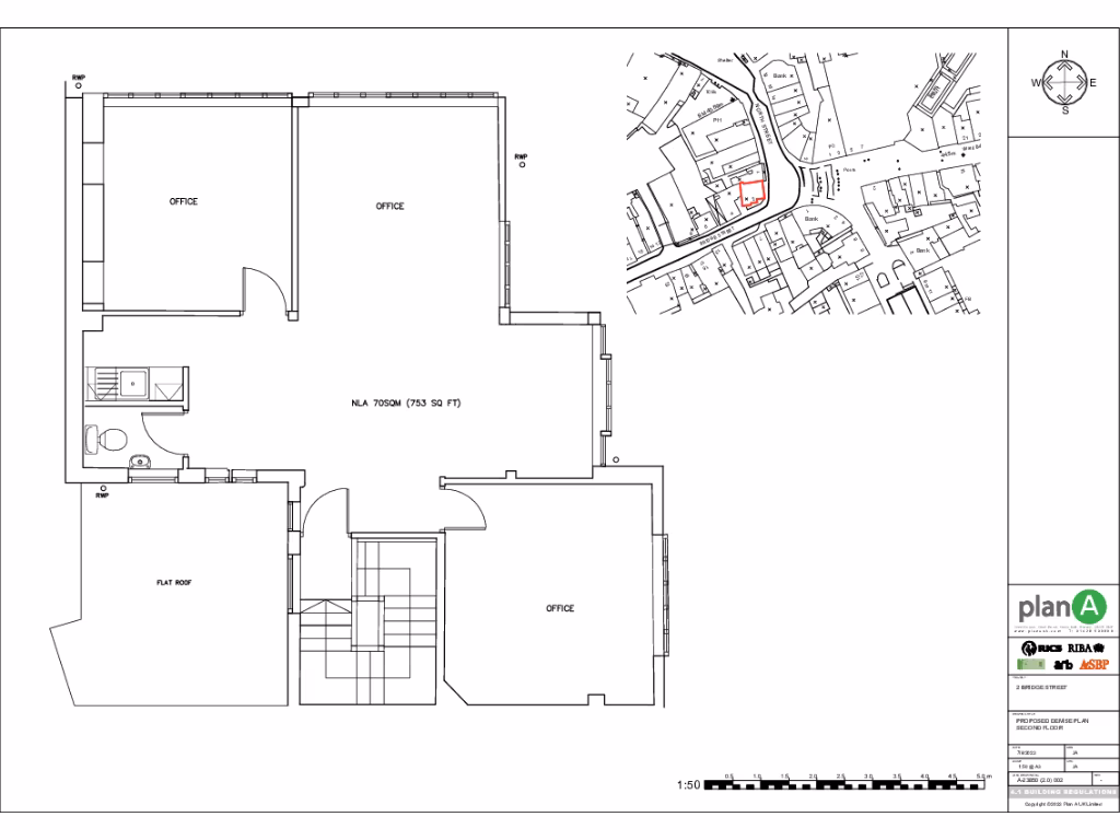
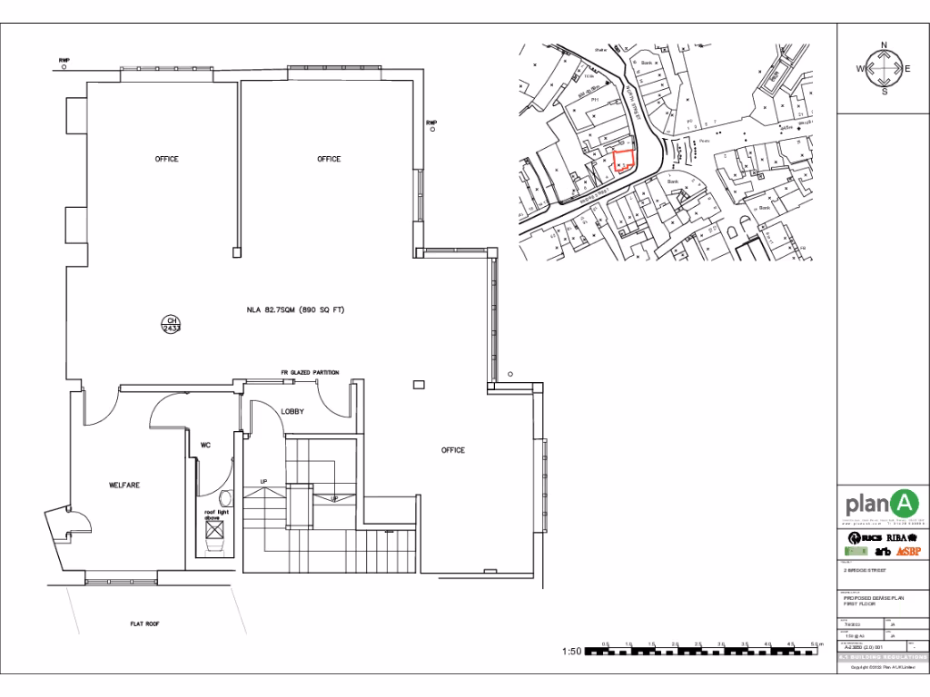
This impressive freehold property, a beautiful blend of history and modern functionality, presents an exceptional opportunity in the heart of Leatherhead. Constructed in 1928 with distinct Jacobean-style features, the building includes a successful retail space leased to Kall Kwik until 2036, offering immediate income potential. The upper floors, recently refurbished with high-quality finishes, provide comfortable, airy office spaces complete with modern amenities such as air conditioning and essential facilities.

Located in a bustling town known for its affluent community, the property is just a stone's throw from renowned national retailers and is well-connected to London via frequent train services. This unique investment is perfect for professionals seeking a stable income-generating asset or businesses looking for prime office space. Given its character and secure lease agreement, this property may not be available for long—act now to secure a gem in a vibrant location.

Property Details

Brochure Descriptions

Image Descriptions

Rooms

Textual Property Features

Detected Visual Features

Nearby Schools

Nearest Bars And Restaurants

,,,,}

Nearest General Shops

,,}

Nearest Grocery shops

,,}

Nearest Supermarkets

,,}

Nearest Religious buildings

,,}

Nearest Medical buildings

,,,}

Nearest Airports

,}

Nearest Leisure Facilities

,,,,}

Nearest Tourist attractions

,,}

Nearest Train stations

,,,,}

Nearest Bus stations and stops

,,,,}

Nearest Hotels

,,}

Tags

Local Market Stats

AirBnB Data

Similar Properties

Meta

High Res Images

Compatible Images

Low res Images

Thumbnails

Raw Images

High Res Floorplan Images

Compatible Floorplan Images

Low res Floorplan Images

FloorplanImages Thumbnail

Raw Floorplan Images