Bespoke interiors, west garden and residents parking in Bath’s most coveted square.
Grade I-listed Regency townhouse with Bath stone elevations
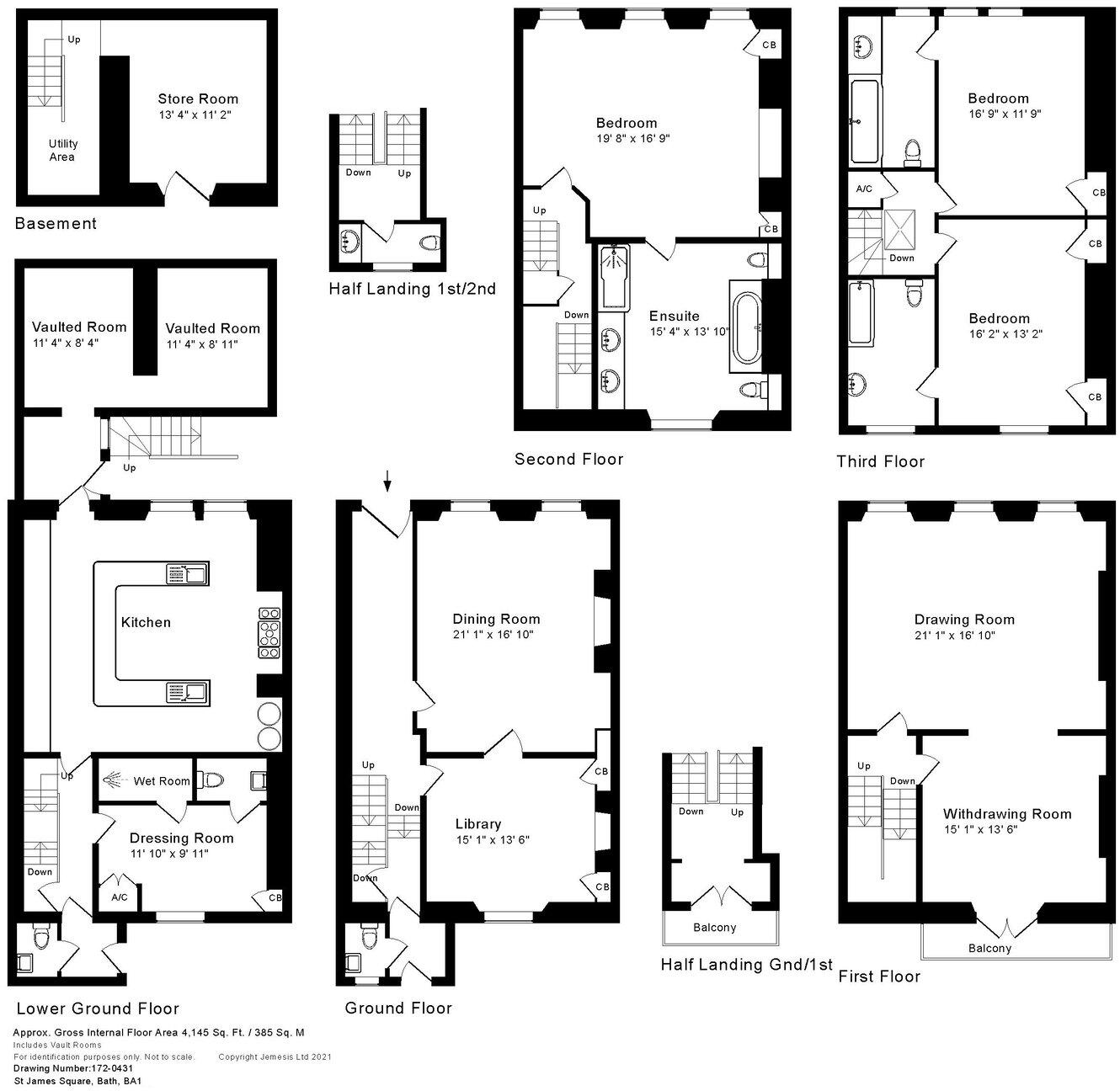
An exceptionally large, newly refurbished Grade I-listed townhouse on St James’s Square, quietly set within one of Bath’s most desirable residential squares. The house offers four generous bedrooms, four bathrooms, three reception rooms including a formal dining room decorated with 24-carat gold leaf and individually commissioned Neoclassical furniture. The bespoke kitchen, rare marbles and custom cabinetry connect high-quality modern finishes with original Regency proportions and tall ceilings.
The property benefits from a west-facing landscaped garden with elevated views over the adjacent parkland/golf approach, plus residents’ off-street parking — a rare convenience in central Bath. At roughly 4,145 sq ft across multiple floors, the layout suits a family requiring formal entertaining space, home working rooms and substantial storage. Local amenities, highly regarded schools, transport links and cultural attractions are all within easy reach.
Important practical points: the Grade I listing protects historic fabric and will limit permitted alterations and cause additional consent requirements and costs. Council tax is described as quite expensive. The area records above-average crime compared with national figures; buyers should satisfy themselves on security measures and insurance. Overall, the house is move-in ready following a high-spec refurbishment but future works will be constrained by listed-status controls.
4 bedroom terraced house for sale in St. James's Square, Bath, BA1 — £2,550,000 • 4 bed • 4 bath • 4145 ft²
3 bedroom town house for sale in St James's Street, Lansdown, Bath, BA1 — £1,250,000 • 3 bed • 2 bath • 2675 ft²
3 bedroom terraced house for sale in St. James's Street, Bath, BA1 — £1,250,000 • 3 bed • 2 bath • 2675 ft²
4 bedroom terraced house for sale in Marlborough Street, Bath, BA1 — £1,495,000 • 4 bed • 2 bath • 3266 ft²
5 bedroom house for sale in Belmont, Somerset, Bath, BA1, United Kingdom, BA1 — £2,350,000 • 5 bed • 3 bath • 3452 ft²
2 bedroom maisonette for sale in St. James's Square, Bath, BA1 — £995,000 • 2 bed • 2 bath • 2632 ft²










































































































