Generous living, large garden and convenient parking for family life.
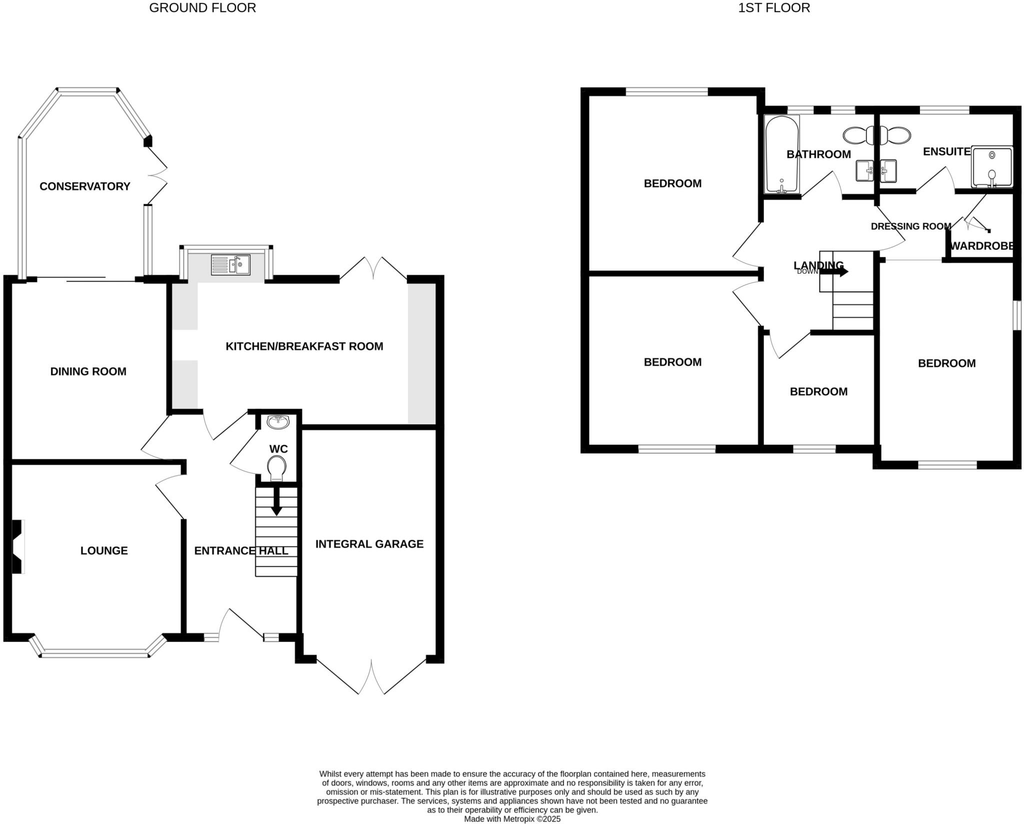
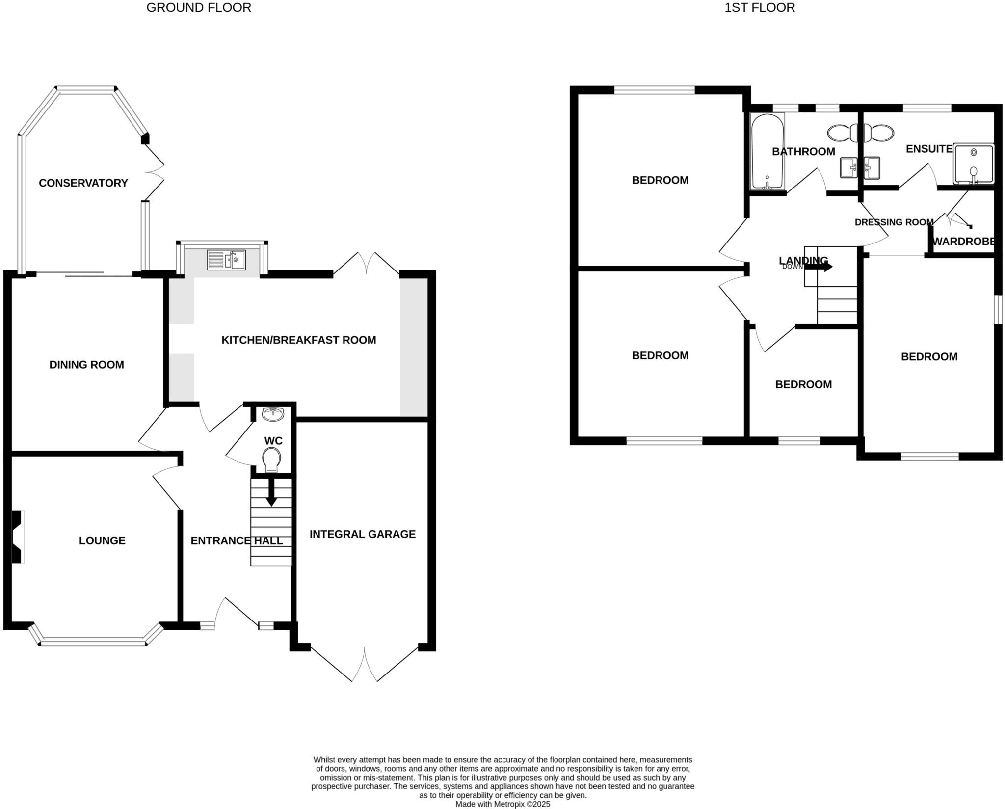
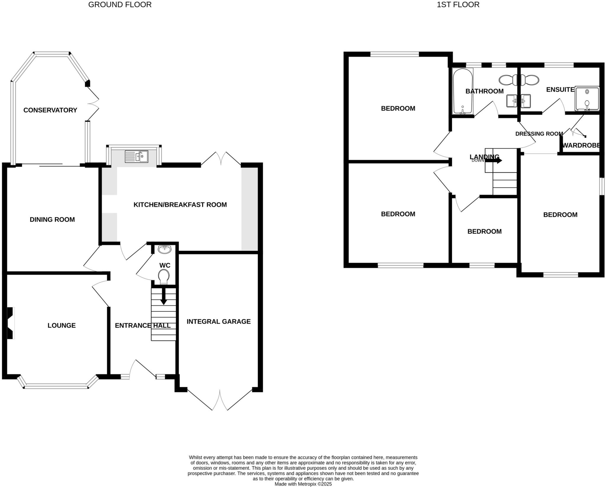
- Detached four-bedroom family home with master en-suite and dressing area
- Two reception rooms plus conservatory and large breakfast kitchen
- Driveway for multiple cars and single integral garage
- Large mature rear garden with paved terrace and privacy
- Freehold tenure; EPC rating C
- Council tax band above average — higher ongoing cost
- Area classed as ageing urban communities / communal retirement
- Fast broadband and excellent mobile signal; no flood risk
A spacious four-bedroom detached house on Alexandra Road arranged over two floors, suited to growing families who want generous living space and a large private garden. The home has two reception rooms, a conservatory and a well-equipped breakfast kitchen, giving clear zones for day-to-day family life and entertaining. The master bedroom includes a dressing area and en-suite, while three further bedrooms and a family bathroom serve children or guests.
Practical strengths include a driveway for multiple cars, an integral single garage, double glazing and gas central heating. The garden is mature and private with paved terrace and established planting, ideal for outdoor play and summer entertaining. Broadband speeds are fast and mobile signal is excellent, useful for homeworking and streaming.
Important factual points: the property is freehold, has an EPC rating of C and council tax band above average. The wider area is classified as ageing urban communities / communal retirement which may affect local demographics. There is no flood risk recorded. Viewings are recommended to fully appreciate the layout and garden scale.
Nearby local schools include several state primaries and secondaries with Good and Outstanding Ofsted ratings within easy reach. Overall this is a well-presented family home offering space, parking and a large garden, with practical running costs and neighbourhood characteristics to consider before purchase.
3 bedroom detached house for sale in Alexandra Road, Burton-On-Trent, DE15 — £350,000 • 3 bed • 1 bath • 1346 ft²
7 bedroom semi-detached house for sale in Alexandra Road, Burton-on-Trent, DE15 — £625,000 • 7 bed • 4 bath • 3000 ft²
3 bedroom detached house for sale in Kensington Road, Winshill, DE15 — £250,000 • 3 bed • 1 bath • 1301 ft²
6 bedroom semi-detached house for sale in Newton Road, Burton upon Trent, DE15 — £550,000 • 6 bed • 3 bath • 2895 ft²
3 bedroom detached house for sale in Castilla Place, Burton-on-Trent, DE13 — £259,500 • 3 bed • 2 bath • 1204 ft²
4 bedroom detached house for sale in Highcroft Drive, Burton-On-Trent, DE14 — £489,000 • 4 bed • 2 bath • 1851 ft²










































































































































