Large one-level apartment with parking and private outdoor space, ready to personalise.
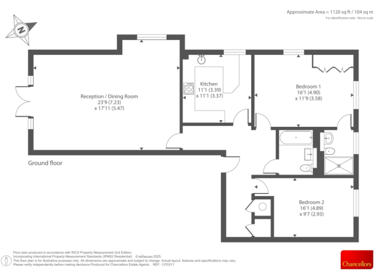
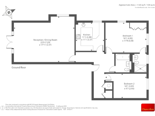
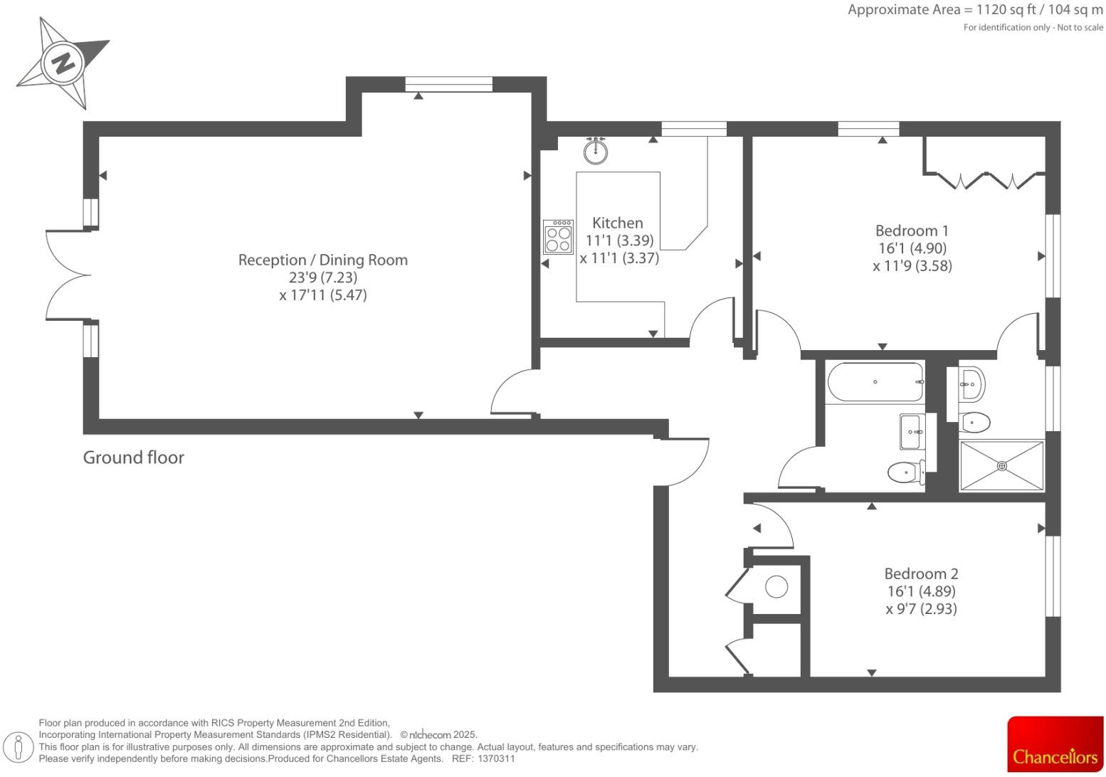
- Spacious ground-floor apartment, circa 1,120 sq ft
- Two double bedrooms; ensuite to bedroom one
- Private outdoor space and well-kept communal grounds
- Allocated underground secure parking space with lift access
- Vacant possession and no onward chain
- Approx 106 years remaining on the lease (leasehold)
- Electric underfloor heating; no gas central heating
- Above-average council tax band
Light-filled and spacious, this ground-floor two-bedroom apartment occupies the former show home of a gated development in Ascot. It offers a large living footprint (circa 1,120 sq ft), private outdoor space and an allocated underground secure parking space with lift access — practical features for everyday convenience.
The principal bedroom includes an ensuite and both bedrooms are doubles, while electric underfloor heating and double glazing provide low-visual-impact heating and insulation. Vacant possession and no onward chain make for a straightforward sale, and the apartment’s size and layout give genuine potential to reconfigure or update finishes to personal taste.
Buyers should note this is a leasehold property with approximately 106 years remaining on the lease and an above-average council tax band. The main heating is electric rather than gas, which may affect running costs compared with gas-heated homes. Overall, this is a secure, well-located flat suited to someone seeking a large, low-maintenance home or an investment with refurbishment upside.
2 bedroom apartment for sale in Seymour Drive, Ascot, SL5 — £650,000 • 2 bed • 2 bath • 1010 ft²
2 bedroom flat for sale in London Road, Ascot, SL5 — £500,000 • 2 bed • 2 bath • 989 ft²
2 bedroom flat for sale in Sunninghill, Berkshire, SL5 — £315,000 • 2 bed • 1 bath • 741 ft²
2 bedroom flat for sale in Ascot, Berkshire, SL5 — £310,000 • 2 bed • 2 bath • 683 ft²
2 bedroom flat for sale in Devenish Road, Ascot, SL5 — £499,000 • 2 bed • 2 bath • 1138 ft²
2 bedroom apartment for sale in Ascot Corner, Ascot, SL5 — £500,000 • 2 bed • 2 bath • 1041 ft²


























































































