Spacious period house with long private garden and extension potential.
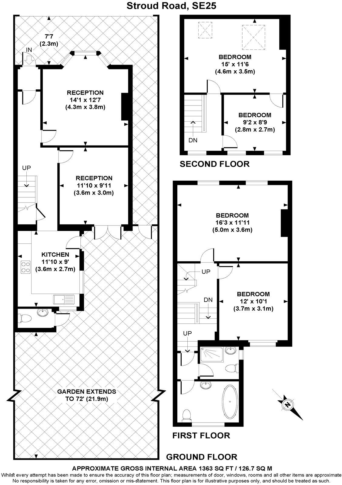
Four bedrooms across three floors, over 1,360 sq ft
This substantial Victorian semi-detached house spreads over three floors and about 1,360 sq ft, offering four bedrooms and two reception rooms. Period features such as a bay window and fireplace give the principal rooms character, while large windows and a rear kitchen door keep spaces bright and practical for family life.
The private garden extends to approximately 72ft with a patio and lawn — a clear family asset for play and entertaining. There is scope to extend (subject to planning permission), presenting realistic potential to add value and reconfigure living space to suit changing needs.
The property requires some updating and modernisation: the solid brick walls are assumed uninsulated, the EPC rating is D, and the layout could benefit from contemporary refurbishment. Buyers should note a commission may be required and overall running costs are likely moderate (council tax), with mains gas central heating already installed.
Situated about 0.9 miles from Norwood Junction with fast links to central London, the home sits in a commuter-friendly area with good local schools, parks and leisure facilities. This is a practical choice for growing families who want space, period character and clear scope to personalise and improve over time.
3 bedroom terraced house for sale in Cobden Road, London, SE25 — £500,000 • 3 bed • 1 bath • 1062 ft²
4 bedroom terraced house for sale in Watcombe Road, South Norwood, London, SE25 — £625,000 • 4 bed • 3 bath • 1351 ft²
4 bedroom end of terrace house for sale in Stanger Road, London, SE25 — £550,000 • 4 bed • 2 bath • 1135 ft²
3 bedroom terraced house for sale in Cobden Road, South Norwood, SE25 — £475,000 • 3 bed • 2 bath • 1041 ft²
4 bedroom terraced house for sale in Burgoyne Road, London, SE25 — £600,000 • 4 bed • 1 bath • 1346 ft²
4 bedroom terraced house for sale in Huntly Road, South Norwood, London, SE25 — £725,000 • 4 bed • 1 bath • 1530 ft²


























































