S73 0SR - 3 bedroom detached bungalow for sale in The Bungalow, Bramp…

View on Property Piper

3 bedroom detached bungalow for sale in The Bungalow, Brampton Road, Wombwell, S73 0SR, S73

Summary - The Bungalow,Brampton Road,Wombwell,BARNSLEY,S73 0SR S73 0SR

3 bed 1 bath Detached Bungalow

**Standout Features:**
- Spacious three-bedroom detached bungalow
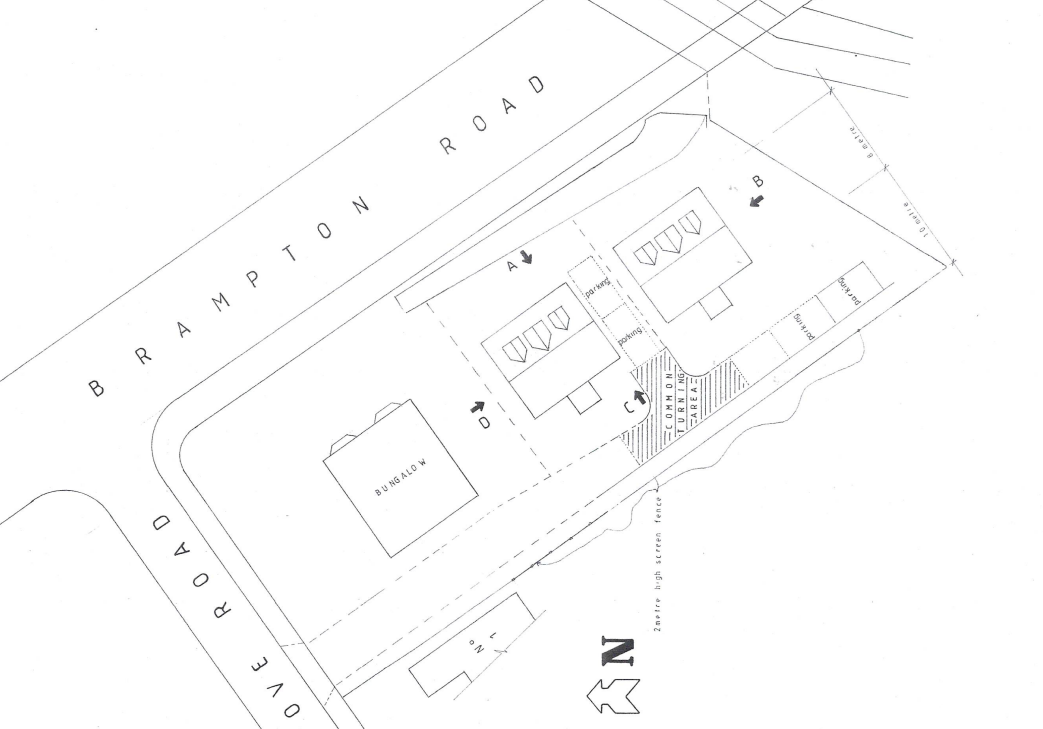
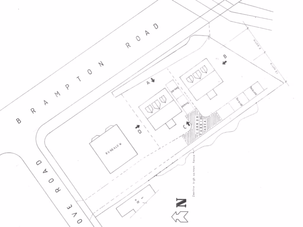
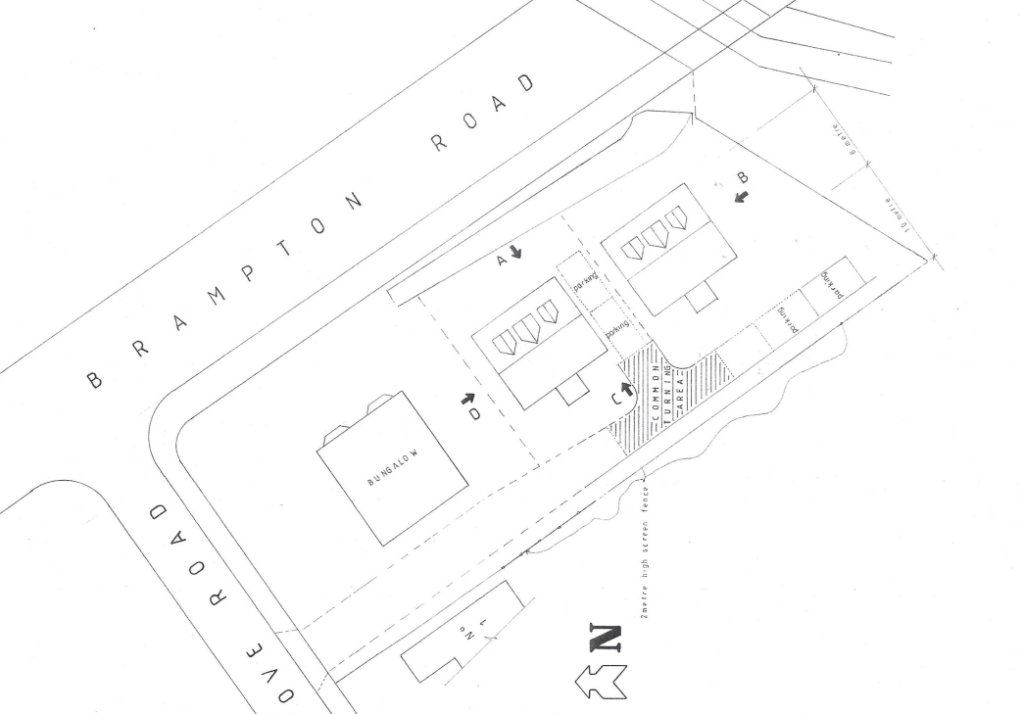
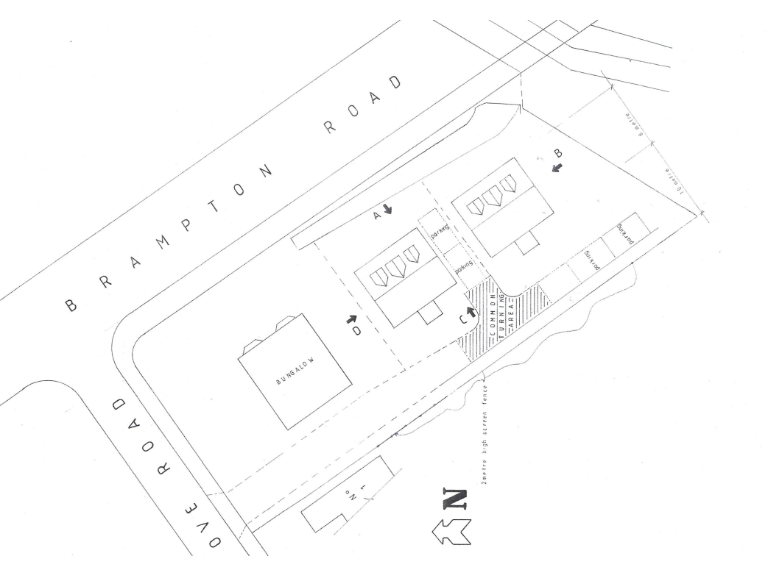
- Impressive 0.5-acre plot with potential for further residential development (subject to planning)
- Ample off-road parking with a garage and a large garden
- Located in a family-friendly area near schools and amenities
- Excellent transport links to Barnsley, Sheffield, and the M1 motorway

This three-bedroom detached bungalow on Brampton Road, Wombwell, offers a remarkable opportunity for renovation enthusiasts and potential developers alike. Set on a generous half-acre plot, the property showcases substantial development potential (subject to planning permission), making it an attractive prospect for investors. The bungalow itself requires refurbishment, presenting a blank canvas for buyers looking to customize their ideal living space.

Internally, the home features a fitted kitchen, a bright and spacious living room with dual-aspect windows, and three well-sized bedrooms, including two double rooms with bay windows. The garden is expansive and enclosed, providing a great outdoor space for families or a potential area for further enhancements.

The property is conveniently located with excellent public transport links and proximity to local amenities, including shops and respected schools, making it an ideal family location. Enjoy fast broadband and low council tax in this low-crime area, enhancing the appeal for both first-time buyers and families. With its immense potential and desirable setting, this bungalow guarantees excitement and opportunity—don’t miss out!

Property Details

Image Descriptions

Floorplan Description

Rooms

Textual Property Features

Detected Visual Features

Nearby Schools

Nearest Bars And Restaurants

,,,,}

Nearest General Shops

,,}

Nearest Grocery shops

,,}

Nearest Supermarkets

,,}

Nearest Religious buildings

,,}

Nearest Medical buildings

,,,}

Nearest Airports

}

Nearest Leisure Facilities

,,,,}

Nearest Tourist attractions

,,}

Nearest Train stations

,,,,}

Nearest Bus stations and stops

,,,,}

Nearest Hotels

,,}

Tags

Local Market Stats

AirBnB Data

Similar Properties

Meta

High Res Images

Compatible Images

Low res Images

Thumbnails

Raw Images

High Res Floorplan Images

Compatible Floorplan Images

Low res Floorplan Images

FloorplanImages Thumbnail

Raw Floorplan Images