Quiet cul-de-sac village home with garden and generous parking.
Three double bedrooms — good first-home layout
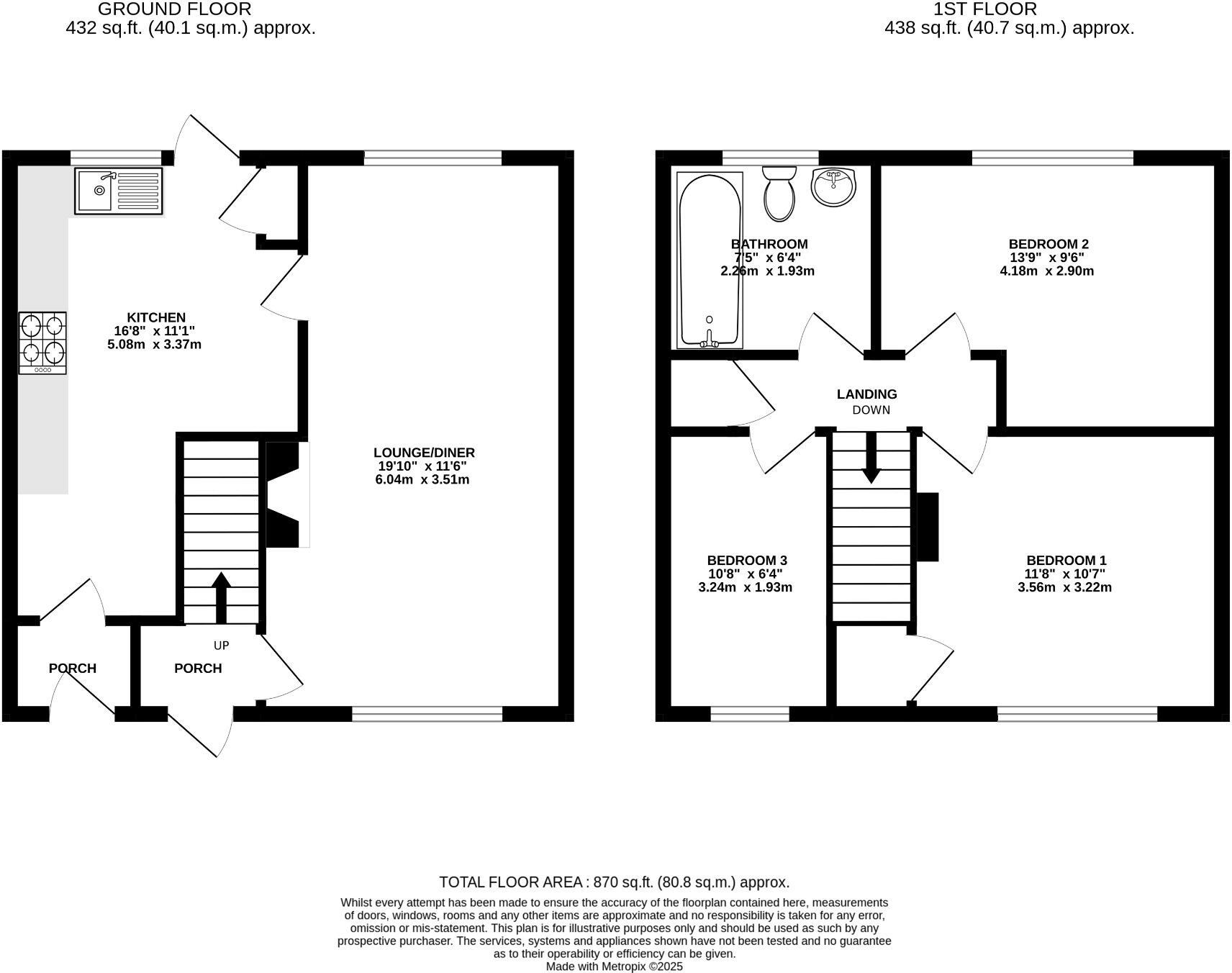
This mid-terrace three-bedroom home in Melbourn offers a practical first purchase with immediate curb appeal and useful off-street parking for 2–3 cars. At around 870 sq ft with an enclosed rear garden, it suits buyers wanting a manageable family home close to transport links and village amenities.
Internally the lounge/diner and well-proportioned kitchen provide a flexible living space ready for modernisation. The house retains double glazing (installed before 2002), a gas boiler with radiators and an EPC rating of 70/C — comfortable now, but with clear scope to improve energy efficiency further.
Construction is a mid-20th-century system-built (concrete) form with external insulation; this brings durability but can affect renovation options. The roof is noted as requiring maintenance and some updating may be needed to modern standards. There is potential for development (STPP) for buyers wishing to extend or reconfigure, though no planning application is provided.
Location is a strong selling point: a quiet cul-de-sac in the popular village of Melbourn, short walk to Meldreth mainline station and local schools rated Good. The garden and driveway are practical extras for everyday family life, while the small plot size and terraced layout limit extensive outdoor expansion.
3 bedroom detached house for sale in Beechwood Avenue, Melbourn, Royston, Cambridgeshire, SG8 — £425,000 • 3 bed • 1 bath • 1022 ft²
3 bedroom semi-detached house for sale in Beechwood Avenue, Melbourn, SG8 — £370,000 • 3 bed • 1 bath • 1262 ft²
4 bedroom detached house for sale in Cedar Close, Melbourn, Royston, Cambridgeshire, SG8 — £650,000 • 4 bed • 2 bath • 1604 ft²
3 bedroom terraced house for sale in High Street, Melbourn, SG8 — £385,000 • 3 bed • 2 bath • 1305 ft²
2 bedroom terraced house for sale in Cambridge Road, Melbourn, SG8 — £300,000 • 2 bed • 1 bath • 540 ft²
3 bedroom mews property for sale in **LOCATION, LOCATION** Moorlands Close, SG8 — £385,000 • 3 bed • 1 bath • 1104 ft²














































