Large garden, parking and attic potential close to schools and canal walks.
Three-bedroom mid‑20th century semi‑detached family home
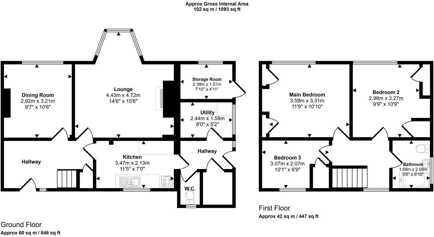
Set on a leafy verge in sought-after Wheaton Aston, this mid‑century semi‑detached house suits growing families seeking space and village life. Ground floor living includes a generous lounge, separate dining/sitting room and a practical fitted kitchen with adjoining utility and guest WC — useful for busy mornings and family routines.
The property sits behind a private driveway with off‑street parking and enjoys a large, well‑maintained rear garden with patio, lawn, vegetable patch and shed — ideal for children, pets and outdoor entertaining. Pleasant green views to the front and a quiet cul‑de‑sac position enhance the peaceful, rural feel.
Upstairs offers three good bedrooms and a modern family bathroom. A half‑boarded attic with pull‑down ladder provides clear potential for conversion (subject to planning and building regulations) to add value or extra accommodation. The home benefits from fast broadband, excellent mobile signal and a low local crime rate.
Practical points to note: the property is approached via a shared right‑of‑way, and council tax banding is not specified. The layout and finishes are comfortable but not newly refurbished, so buyers should expect cosmetic updating rather than a full renovation. Overall this is a well‑located family home in an affluent, well‑served village with good school options and easy road links to the M54/M6.
3 bedroom semi-detached house for sale in Trevitt Place, Off Pinfold Lane, Wheaton Aston, ST19 — £270,000 • 3 bed • 1 bath • 939 ft²
3 bedroom detached house for sale in Meadow Close, Wheaton Aston, Stafford, ST19 — £350,000 • 3 bed • 1 bath • 759 ft²
3 bedroom semi-detached house for sale in Bridge Croft (Off Long Street), Wheaton Aston, ST19 — £295,000 • 3 bed • 2 bath • 908 ft²
4 bedroom detached house for sale in Springfield Drive, Wheaton Aston, ST19 — £350,000 • 4 bed • 1 bath • 1122 ft²
4 bedroom semi-detached house for sale in Burford Road, Wheaton Aston, Stafford, ST19 — £325,000 • 4 bed • 1 bath • 936 ft²
4 bedroom detached house for sale in Cuttlestone Court, Frog Lane, Wheaton Aston, ST19 — £595,000 • 4 bed • 3 bath • 2327 ft²






























































































































